5 Bedroom Detached
£1,200,000
Eastcote, Charing Hill, Charing

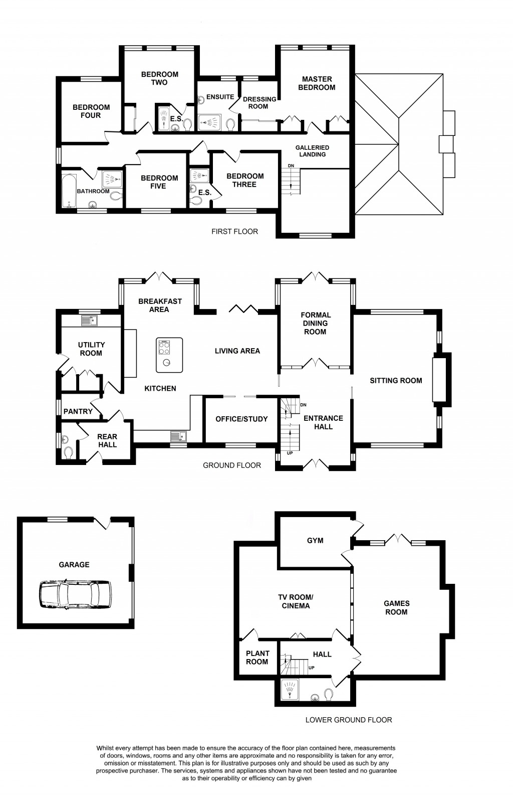
Floorplans For Eastcote, Charing Hill, Charing

Description


A stunning, individual and bespoke five bedroom detached energy efficient contemporary home with remaining NHBC Guarantee, sitting in a plot of 1.28 acres, found on the edge of the popular village of Charing located near the foot of the North Downs in Kent.

This home was designed and commissioned by the current vendor and constructed in 2012 creating a superb stylish and spacious family home. The property benefits from many notable features such as an extensive lower ground floor entertainment suite, underfloor heating throughout, iroko wood windows, oak flooring, garaging and the property is also fully wired for Cat 6 and television connections, heat recovery and rain harvesting systems.

The accommodation comprises a grand entrance hall with 16'4” vaulted ceiling, principal sitting room with beamed 16'7” vaulted ceiling, formal dining room, an open plan kitchen/breakfast room/family room, utility room, pantry, cloakroom, rear hall and office/study. The lower ground floor comprises hall, shower room, games room, TV/cinema room and gym. To the first floor, there is a lovely master bedroom suite with dressing room and en-suite shower room, four further double bedrooms, two of which benefit from en-suites and a family bathroom.

Outside, the attractive 1.28 acre plot benefits from a splendid brick paved driveway, double garage, extensive sun terrace and gardens that are principally laid to lawn, bordered by trees.

Charing enjoys an interesting mix of village shops, restaurants, churches, primary school and doctor's surgery. Transport links are well supported with Charing mainline railway station at the southerly end of the village providing access to London Victoria and Ashford International Stations, whilst Junction 9 of the M20 Motorway is 5.2 miles distant and Junction 8 is 9.6 miles.

Charing is also just 5 miles west of the large market town of Ashford with its excellent selection of leisure facilities, choice of schools and the International Rail station which benefits from the 37 minute high speed train service to London St Pancras.
Properties of this specification and size rarely appear on the open market this close to Charing village and we strongly advise interested applicants to make immediate arrangements to view to avoid disappointment.

Entrance Hall:
20'1' x 13'3' (6.12m x 4.04m) with a 16'4' (4.98m) vaulted ceiling. Double iroko wood entrance doors, iroko wood high level double glazed window to front, double glazed iroko windows to side, oak floor with underfloor heating, bespoke oak staircase leading to oak galleried landing, oak staircase leading to lower ground floor level, full height oak glazed double doors and windows through to formal dining room, coved ceiling, feature chandelier.

Sitting Rooom:
25'3' x 16'7' (7.70m x 5.05m) with a beautiful 16'7' (5.05m) vaulted beamed ceiling. Iroko wood double glazed windows to front and rear, two oak double glazed windows to side, oak timber floor with underfloor heating, feature open fireplace with oak Bressumer beam, brick back and tiled hearth with fitted wood burner, television point, ceiling spot lights, integrated wiring for table lamps.

Formal Dining Room: 16'5' x 13'3' (5.00m x 4.04m)
Full height oak glazed double doors and windows through to entrance hall, iroko wood double glazed double doors and square bay window to rear accessing sun terrace, carpet flooring with underfloor heating, coved ceiling.

Kitchen/Breakfast Room/Living Room:
A stunning focal point of the home measuring 31'8' x 29'5' (9.65m x 8.97m) at its largest. The two main areas comprise:

Living Room Area: 16'2' x 14'0' (4.93m x 4.27m)
Sliding glazed oak door from hall, iroko bi-folding doors opening to sun terrace, ceramic tiled floor with underfloor heating, coved ceiling, television point, doors through to office/study.

Kitchen/Breakfast Room Area:
31'8” (9.65m) long, iroko wood double doors and double glazed square bay window to rear, iroko double glazed window to front. An extensive range of oak door fronted, wood and cream, wall and base units with quartz worktops over, island unit with integrated AEG induction hob, small sink and mixer tap and two wine cooling fridges. Two integrated brushed steel AEG electric ovens, Samsung American fridge freezer, AEG steam cooker and AEG microwave, integrated dishwasher, integrated sink and mixer tap, two large pull-out larder cupboards, glass door display cupboards, pull-out baskets, bookshelf, coved ceiling, recessed lighting.

Utility Room: 11'4' x 11'0' (3.45m x 3.35m)
Iroko wood double glazed window to rear, iroko wood door to side, ceramic tiled floor with underfloor heating, range of gloss white base units with roll fronted laminate worktop over, integrated double stainless steel sink and mixer tap, fitted double cupboard with oak doors housing space and plumbing for washing machine and tumble dryer, fitted cupboard housing Vaillant gas boiler, coved ceiling.

Pantry: 7'5' x 6'5' (2.26m x 1.96m)
Iroko wood double glazed window to side, ceramic tiled floor with underfloor heating, coved ceiling, automatic lighting.

Rear Hall:
Iroko wood double glazed door and window to front, ceramic tiled floor with underfloor heating, coved ceiling.

Cloakroom:
Iroko wood double glazed window to side, ceramic tiled floor with underfloor heating, low level WC with split flush, corner vanity sink, part tiled wall with mosaic tiled border.

Office/Study: 15'3' x 10'10' (4.65m x 3.30m)
Iroko wood double glazed window to front, double sliding oak entrance doors, composite oak floor with under floor heating, television point, cat 6 computer point, coved ceiling, recessed lighting.

Lower Ground Floor Hall:
Oak staircase to entrance hall, ceramic tiled floor with under floor heating, recessed lighting, coved ceiling.

Shower Room:
Ceramic tiled floor with under floor heating, fitted double shower cubicle with tiled splashbacks, power shower with raindrop head and body hose and sliding glass door, low level WC with split flush, vanity sink with mixer tap.

Games Room:
25'2' x 16'10' extending to 19'5' (7.67m x 5.13m extending to 5.92m) Double glazed double doors and windows to rear accessing rear garden, composite oak flooring with under floor heating, recessed lighting, television point, oak floor to ceiling windows through to TV/cinema room, coved ceiling.

TV/Cinema Room:
21'8' x 13'6' extending to 17'11' (6.60m x 4.11m extending to 5.46m) oak floor to ceiling windows through to games room, composite oak flooring with under floor heating, walk-in plant room housing the property ancillary systems, television point, coved ceiling, recessed lighting.

Gym: 13'3' x 9'10' (4.04m x 3.00m)
Double glazed door to rear, carpet flooring with underfloor heating, television point, coved ceiling.

First Floor Landing:
Oak flooring with underfloor heating, oak balustrades, iroko wood double glazed high level window to front, iroko wood double glazed window to side, fitted linen cupboard with automatic light, recessed lighting, coved ceiling.

Master Bedroom:
14'4' x 13'4' (4.37m x 4.06m) to fitted wardrobes, three iroko double glazed windows to rear, carpet flooring with underfloor heating, two fitted double wardrobes, television point, coved ceiling, wall lighting, opening through to;

Dressing Room: 8'3' x 7'8' (2.51m x 2.34m)
Iroko double glazed dormer window to rear, carpet flooring with underfloor heating, fitted triple wardrobe with full length sliding mirrored doors.

Master En-suite:
Iroko wood double glazed dormer window to rear, luxury fitted white suite comprising fitted ceramic tiled double shower with glass sliding door, power shower with raindrop head and body hose, low level WC with split flush, wall hung sink and chrome mixer tap, tiled flooring with underfloor heating, fully ceramic tiled walls, shaver point, recessed lighting, coved ceiling.

Bedroom Two:
13'5' x 11'4' (4.09m x 3.45m) to fitted wardrobe. Three iroko wood double glazed windows to rear, carpet flooring with underfloor heating, fitted double wardrobe with full height sliding mirrored doors, recessed lighting, coved ceiling, television point, door through to;

En-suite:
Fitted white suite comprising fitted ceramic tiled double shower with glass sliding door, power shower with raindrop head and body hose, low level WC with split flush, vanity sink unit with chrome mixer tap, sparkle red ceramic tiled flooring with underfloor heating, ceramic tiled walls with red mosaic tiled accent, shaver point, recessed lighting, coved ceiling.

Bedroom Three: 12'5' x 10'4' (3.78m x 3.15m)
Iroko wood double glazed window to front, carpet flooring with underfloor heating, television point, coved ceiling, door through to:

En-suite:
Fitted white suite comprising ceramic tiled double shower with glass sliding door, power shower with raindrop head and body hose, low level WC with split flush, vanity sink unit with chrome mixer tap, white ceramic tiled flooring with underfloor heating, ceramic tiled walls, recessed lighting, coved ceiling.

Bedroom Four: 13'0' x 11'4' (3.96m x 3.45m)
Iroko wood double glazed dormer window to rear, carpet flooring with underfloor heating, feature superhero wallpapered wall, television point, coved ceiling.

Bedroom Five: 11'9' x 10'4' (3.58m x 3.15m)
Family Bathroom:
Iroko wood double glazed dormer window to front, luxury fitted white suite comprising ceramic tiled double corner shower with glass sliding doors, power shower with raindrop head and body hose, bath with central chrome mixer tap and mosaic tiled surround, low level WC with split flush, wall hung sink and chrome mixer tap, tiled flooring with underfloor heating, fully ceramic tiled walls with flower pattern accents, shaver point, recessed lighting, coved ceiling.

The property sits in a total plot of approximately 1.28 acres on the North Downs and features:

Garage:
19'6' x 19'5' (5.94m x 5.92m) Double garage with two up and over doors, personal door and window to side, power and light, access to loft area with potential for a room conversion.

Front:
The property is approached via an electric five-bar gate leading to an extensive brick paved driveway offering parking for multiple vehicles. There are extensive front gardens mainly laid to lawn with a variety of trees and shrubs. There is a pedestrian gate to the left side of the property and five bar gate to the right allowing access for tractor mowing.


Rear:
There is an extensive fenced rear garden which has been created with safety for children and pets in mind. To the rear of the property, there is a large sun terrace area with wrought iron railings which offers an ideal place for barbeques and alfresco dining. The garden is predominantly laid to lawn with shrub and tree borders and also benefits from external lighting, power points and tap. The games room and gym on the lower ground floor are easily accessible from the rear garden.

Saddlers

Saddlers

Reed House
1-3 Old Ashford Road
Charing
Kent
TN27 0JG

+44 (0)1233 713127

Reference: SAD1713406

Request a viewing for this property

Simply fill out the form below or alternatively call us on 020 7839 0888

* Mandatory fields