3 Bedroom Semi-Detached
£330,000
The Old Police House, 12 Station Road, Charing

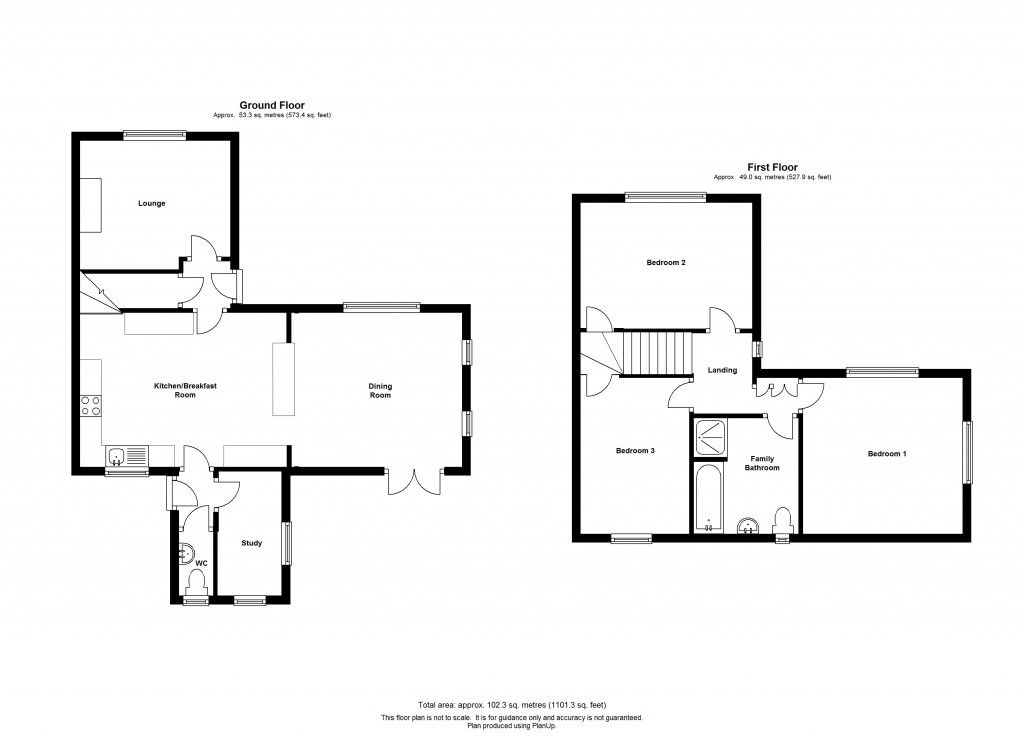
Floorplans For The Old Police House, 12 Station Road, Charing

Description


A rare opportunity to aquire a three bedroom extended semi-detached family home occupying a generous plot with off-road parking, situated close to the centre of the historic village of Charing.

This charming property was formerly the old Police house for the village and benefits from accommodation arranged over two floors including an entrance hall, snug, kitchen/dining room, downstairs cloakroom and a small study along with three bedrooms and a bathroom on the first floor. Notable benefits include gas fired central heating via radiators.

Outside, the property sits well back from the road and enjoys a 72” landscaped rear garden with gated access to two off-road parking spaces to the rear of the property.

The property is ideally placed in the village for the commuter, being just one road away from Charing's mainline railway station, yet just across the A20 from the historic High Street with its abundance of interesting and characterful architecture.

Charing enjoys an interesting mix of village shops, pubs, restaurants, churches, private health and fitness club, primary school and doctor's surgery. Transport links are well supported with a main line railway station in the village, providing access to London Victoria and Ashford International stations, whilst junction 9 of the M20 motorway is some 5 miles distant and junction 8, some 8 miles distant.

The village is also just 5 miles west of the market town of Ashford, with its excellent shopping and leisure facilities, choice of schools and Ashford International station which benefits from the 37 minute High Speed train service to London St Pancras.

We anticipate a good deal of interest in this property and highly recommend any interested applicants make arrangements to view to avoid disappointment.

Saddlers

Saddlers

Reed House
1-3 Old Ashford Road
Charing
Kent
TN27 0JG

+44 (0)1233 713127

Reference: SAD1713311

Request a viewing for this property

Simply fill out the form below or alternatively call us on 020 7839 0888

* Mandatory fields