4 Bedroom Terraced Flat
£395,000
Dalkeith, Midlothian

Floorplans For Dalkeith, Midlothian
EPC Graph for Dalkeith, Midlothian}

Description


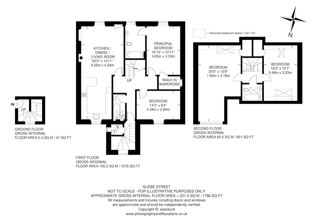
A beautifully presented four-bedroom double upper apartment, with shared garden. Moments from Dalkeith High Street and Country Park and within easy commuting distance of Edinburgh. Summary of Accommodation: Ground Floor: Entrance Hall, Stairs to First Floor. First Floor: Landing, Open Plan Kitchen-Living-Dining Room, Principal Bedroom with walk in wardrobe and En Suite Bathroom, Double Bedroom, Family Bathroom, Understairs Storage Cupboard and Boiler Cupboard. Second Floor: Landing, Large Double Bedroom/Studio, Double Bedroom and a Bathroom. Shared Garden: Predominantly laid to lawn with a paved patio area and summer house. EPC Band - Band C Council Tax - Band E Tenure - Freehold

Reference: RUR260001

Request a viewing for this property

Simply fill out the form below or alternatively call us on 020 7839 0888

* Mandatory fields