4 Bedroom Duplex Flat
£495,000
Upper Allan Street, Blairgowrie, Perth and Kinross

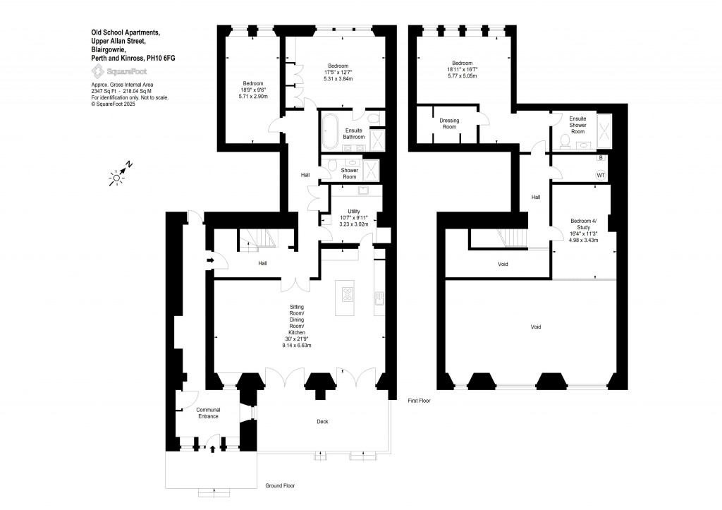
Floorplans For Upper Allan Street, Blairgowrie, Perth and Kinross
EPC Graph for Upper Allan Street, Blairgowrie, Perth and Kinross}

Description


Set within the beautifully restored Old School House, this exquisite property combines timeless charm with cutting-edge comfort and immaculate finishes to create a truly exceptional living experience located in the delightful town of Blairgowrie. Accommodation: Ground Floor: Entrance hallway, living room leading to open plan dining kitchen, utility room, shower room, two double bedrooms (one with additional en-suite bathroom). First Floor: Mezzanine level provides a potential fourth bedroom or gallery/office space, principal bedroom with dressing room and en-suite shower room. Exterior: Private enclosed courtyard area accessed by patio doors from the kitchen. Exclusive use of a small lawned area. Two allocated parking spaces. Detached storehouse with private, sectioned storage area. Approx. 226 sqm Council Tax Band: E EPC Rating: B Tenure: Freehold

Reference: RUR250441

Request a viewing for this property

Simply fill out the form below or alternatively call us on 020 7839 0888

* Mandatory fields