3 Bedroom Terraced House
£295,000
Dunfermline, Fife

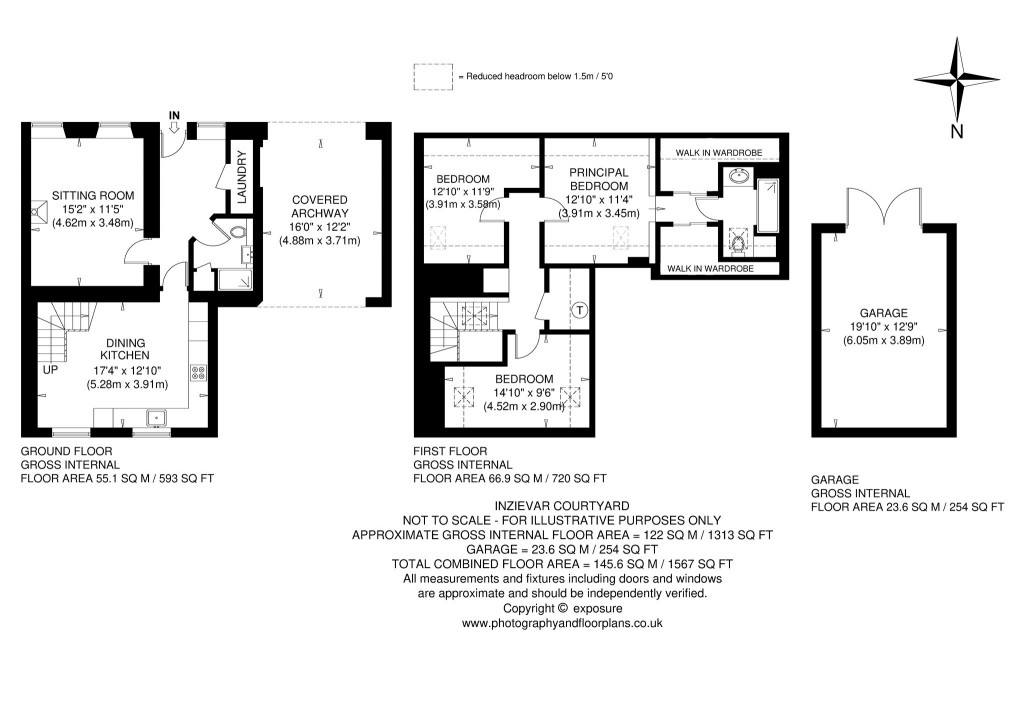
Floorplans For Dunfermline, Fife Floorplans For Dunfermline, Fife Floorplans For Dunfermline, Fife Floorplans For Dunfermline, Fife
EPC Graph for Dunfermline, Fife}

Description


Heritage charisma meets timeless modern living within a Scots Baronial coach house and stable yard conversion, set apart by an utterly charming, abundant walled garden. 6 Inzievar Courtyard owns 0.5 acres within the former walled garden of Inzievar House - a secluded, south-facing idyll, rich with storybook charm. Accommodation Ground Floor: Hall, Sitting Room, Kitchen/Dining Room, Shower Room, and Utility Room. First Floor: Principal Bedroom with walk-through Dressing Area and en-suite Shower Room, and two further Bedrooms. Approximate Gross Internal Floor Area: 1313 sq. ft (122 sq. m). Exterior: Verdant, landscaped private garden, within the former walled garden of Inzievar House, of approx. 0.5 acres, featuring a south-facing terrace, an elegant lawn, a kitchen garden with a greenhouse, an idyllic pond area, and a garden shed. Private terrace area within the communal courtyard, a large single garage, and a private parking bay. Additionally, there are approximately 7 acres of well-maintained, mature common grounds, including the formal gardens of Inzievar House, a paddock area with a drying green, and a communal car parking area. Dunfermline 6 miles (9 km); Edinburgh City Centre 22 miles (35 km); and Glasgow City Centre 35 miles (57 km). (All distances are approximate). Tenure - Freehold Council Tax Band - D EP Rating - Band D

Reference: RUR250413

Request a viewing for this property

Simply fill out the form below or alternatively call us on 020 7839 0888

* Mandatory fields