Development Plot
£180,000
Linlithgow, West Lothian

Description


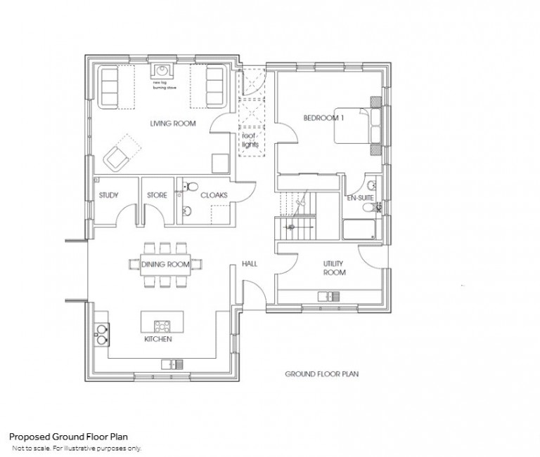
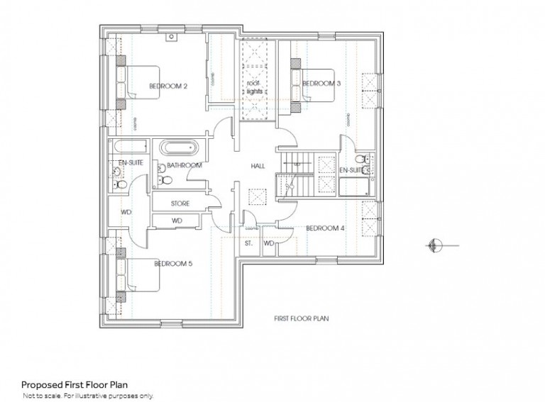
A rarely available house plot with full planning permission for a statement, contemporary home, which forms part of a charming enclave of semi-rural homes, in a sought-after setting, some 3.5 miles from Linlithgow. Drovers Bank occupies an enviable position, which affords the amenity associated with country living, while being strategically positioned for ease of access to Central Scotland’s arterial transport network and within comfortable comuting distance of both Edinburgh and Glasgow City Centres. Summary Plot of Approximately 545 m. sq. Full Planning Permission for a stylish yet timeless family home, extending to approximately 1733 sq. ft. Plans by the experienced and Linlithgow-based architectural firm, Pollock Hammond Ltd, Foundations installed and service track along Drovers Bank. Bounded by a combination of tall, traditional stone walls and neat timber fencing, providing privacy and seclusion. Planning Reference Number: LIVE/0458/FUL/17 Further information available within the sales particulars, or on request from the selling agents. Linlithgow 3 miles (5 km); Edinburgh City Centre 16 miles (25 km); and Glasgow City Centre 39 miles (64 km). (All distances are approximate).

Reference: RUR250379

Request a viewing for this property

Simply fill out the form below or alternatively call us on 020 7839 0888

* Mandatory fields