5 Bedroom Detached House
£2,200,000
Perth, Perth and Kinross

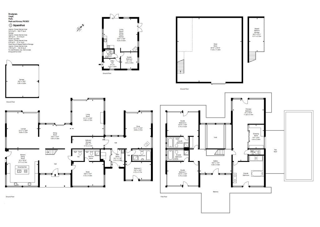
Floorplans For Perth, Perth and Kinross
EPC Graph for Perth, Perth and Kinross}

Description


A statement Huf Haus, in a superlative setting on the banks of the River Tay, wherein design credentials, opulent interior architecture, and luxury finishes have been combined to afford sumptuous, modern country living. Broadgreen is ensconced within approximately 25 acres of verdant private grounds, which are set apart by their enviable, elevated position on the bank of the River Tay. Accommodation Summary Ground Floor Hall, Drawing Room, Dining Room, Sitting Room, open-plan Kitchen/Dining Room, and Family Room. Cloakroom/Inner Hall, WC, and Utility Room. Two Double Bedroom Suites (one with an en-suite Bathroom and one with a Shower Room). First Floor Gallery with Study/Library/Lounge area. Principal Bedroom Suite with Dressing Room, Bathroom, and WC. Double Bedroom Suites 4 & 5 with en-suite Bathrooms. GIA approx. 5412 sq. ft. (502 sq. m.) River Lodge Timber cabin with open-plan living/dining/kitchen, one double bedroom, and a shower room. Grounds Private grounds extending to approx. 25 acres in all, including: Around 7.5 acres of garden ground around the house, primarily laid to lawn in the style of parkland and governed by glorious views across the River. Mature, mixed woodland populates much of the grounds to the south of the house, providing amenity and a high degree of privacy and seclusion. Smart, gated entrance (electrically operated) and sweeping private driveway, culminating in an expansive tarmacadam area at the foot of the house, providing car parking and turning space for multiple vehicles. Outbuildings Detached double garage with electrically-operated doors. Purpose-built, machinery shed (approx. 38 ft x 38 ft), including a mezzanine/loft area. Tenure: Freehold EPC Rating: Band C Council Tax Band: H

Reference: RUR250299

Request a viewing for this property

Simply fill out the form below or alternatively call us on 020 7839 0888

* Mandatory fields