4 Bedroom Terraced House
£575,000
Aberlady, East Lothian

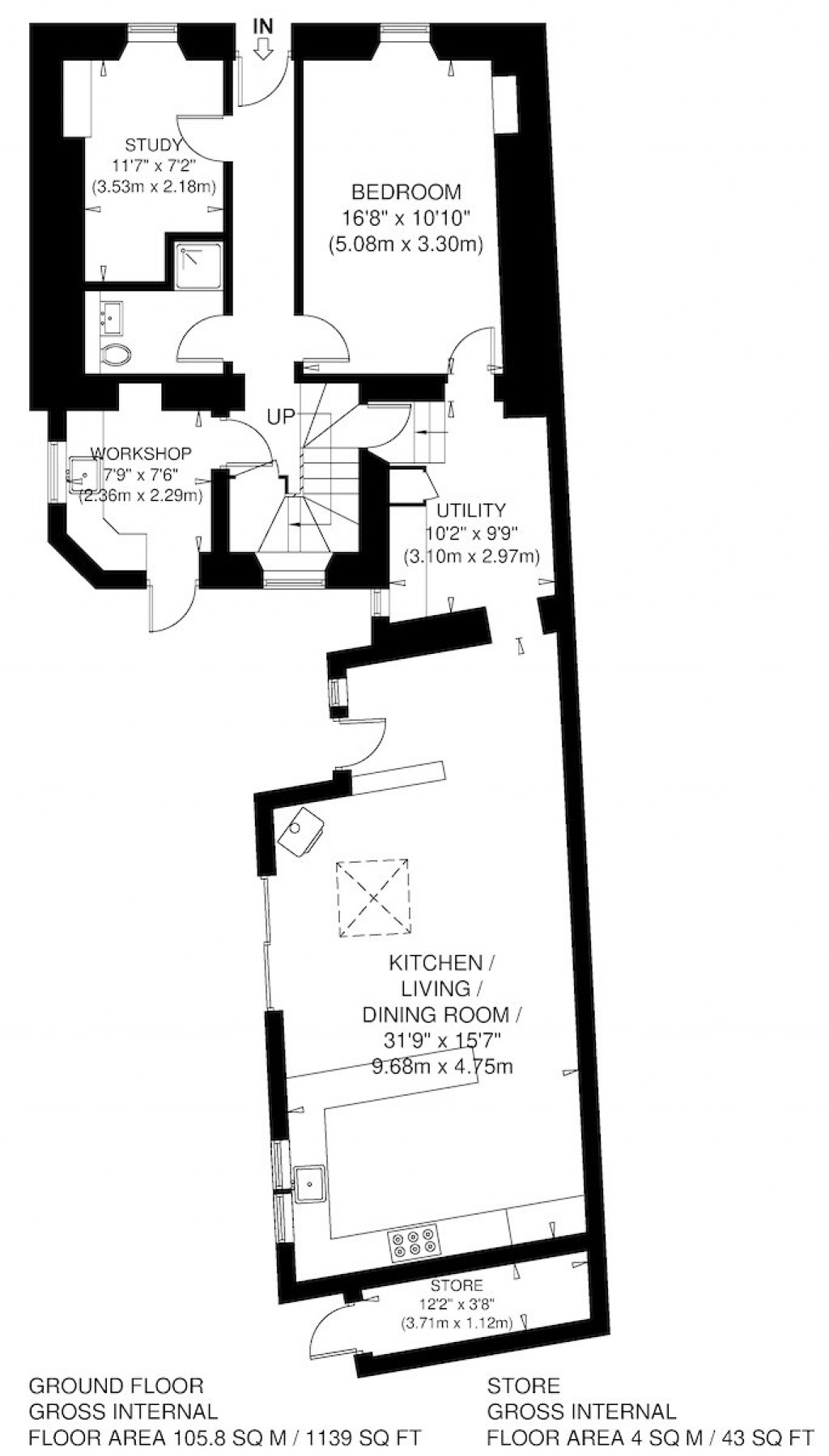
Floorplans For Aberlady, East Lothian Floorplans For Aberlady, East Lothian Floorplans For Aberlady, East Lothian
EPC Graph for Aberlady, East Lothian}

Description


A spacious 4-bedroom town house in the popular conservation village of Aberlady, benefiting from sea views, attractive gardens to the front and rear and off-road parking Summary of Accommodation Ground Floor: Entrance Hall, Open Plan Kitchen/Living Room, Living Room/Dining Room/Double Bedroom, Shower Room, Study, Utility Room and a Workshop First Floor: Landing, Sitting Room/Double Bedroom, Principal Bedroom and a Family Bathroom Second Floor: Landing and Two Double Bedrooms Garden: Gravelled courtyard garden to the front with colourful herbaceous borders together with a rear driveway with garden terrace and private parking. Tenure - Freehold Council Tax - Band F EPC rating - Band D

Reference: RUR250276

Request a viewing for this property

Simply fill out the form below or alternatively call us on 020 7839 0888

* Mandatory fields