4 Bedroom Detached House
£375,000
Kinrossie, Perth, Perthshire

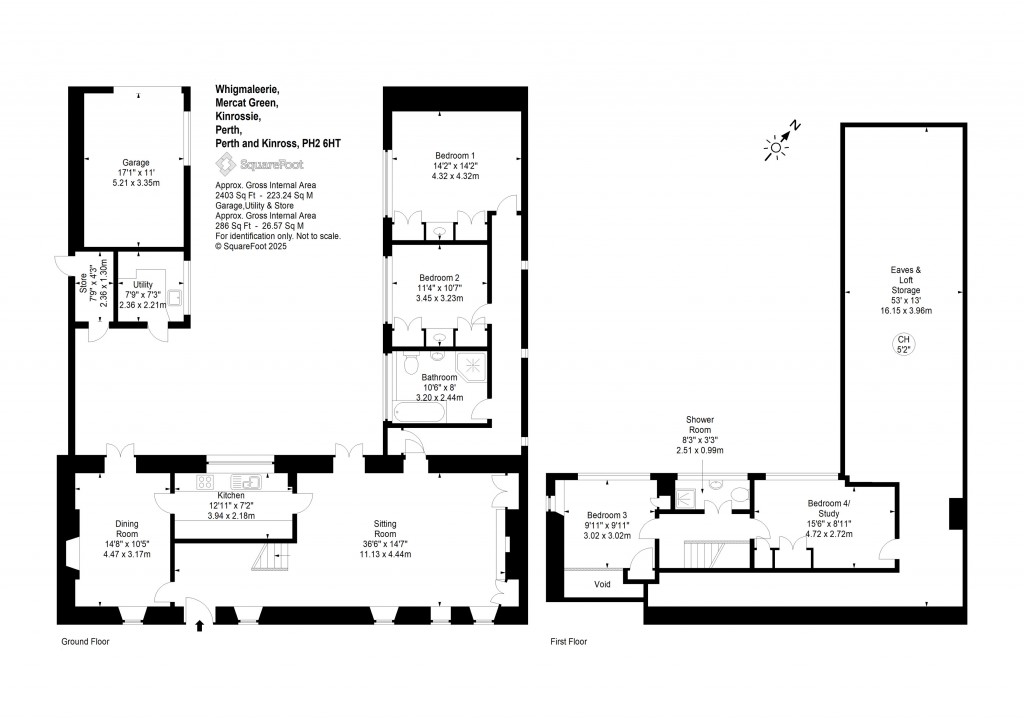
Floorplans For Kinrossie, Perth, Perthshire
EPC Graph for Kinrossie, Perth, Perthshire}

Description


A charming detached cottage offering flexible and spacious accommodation with delightful private garden situated in the conservation village of Kinrossie. Accommodation: Ground Floor: Entrance Hallway open plan to the Living Room, Kitchen, Dining Room, Bathroom, Double Bedroom 1, Double Bedroom 2. First Floor: Double Bedroom 3, Double Bedroom 4/Office, Shower Room. Loft area. Exterior: The garden is predominantly laid to lawn with a range of mature trees, shrubs and bushes. Greenhouse. Patio. Outbuilding: Utility Room. Garden Store. Private driveway providing ample parking. Garage. Wonderful views over the surrounding countryside. EPC - Band D Council Tax - Band F

Reference: RUR250255

Request a viewing for this property

Simply fill out the form below or alternatively call us on 020 7839 0888

* Mandatory fields