4 Bedroom Detached House
£590,000
Luncarty, Perth, Perth and Kinross

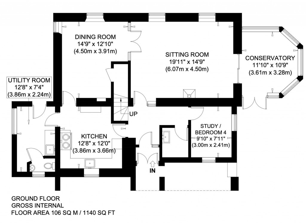
Floorplans For Luncarty, Perth, Perth and Kinross Floorplans For Luncarty, Perth, Perth and Kinross
EPC Graph for Luncarty, Perth, Perth and Kinross}

Description


Timeless country living within a tastefully refurbished, converted cottage, which commands an open outlook across undulating rural scenery and is accompanied by a pair of versatile, traditional outbuildings. Accomodation Ground Floor: Entrance Vestibule, Hall, Sitting Room, Dining Room, Conservatory, Kitchen/Breakfast Room, Study/Bedroom 4, Utility Room, WC, and Cloak/Boot Room. First Floor: Principal Bedroom with en suite Shower Room and Roof Terrace, Two further Double Bedrooms and a Bathroom. Exterior: Smithy Cottage is ensconced within a mature and charming plot extending to approximately 0.8 acres. It incorporates: a spacious garden which is predominantly laid to lawn; an enclosed lily pond; a decked terrace with direct access via patio doors from the conservatory; a summerhouse; and an expansive driveway area suitable for parking and turning multiple vehicles. Once thought to have been a blacksmith's forge/workshop, the property has two large, detached steading buildings - a stone-built barn and a brick-built shed. Approx = 0.8 acres Council Tax Band: E EPC Rating: D

Reference: RUR250157

Request a viewing for this property

Simply fill out the form below or alternatively call us on 020 7839 0888

* Mandatory fields