Description
A beautifully bright and spacious 6/7-bedroom detached family home situated in the highly sought after village of Gifford, sitting elegantly amongst manicured gardens and grounds extending to 1.3 acres.
Dating from 1923, the house benefits from beautiful period features to include hardwood flooring, pine stair balustrades, working fireplaces, original Art Deco stained glass light shades and large sash and case astragal glazed windows that allow through plenty of natural light - offering lovely views of the garden from every room.
The striking property provides flexible accommodation with the scope to upgrade to the buyer's taste.
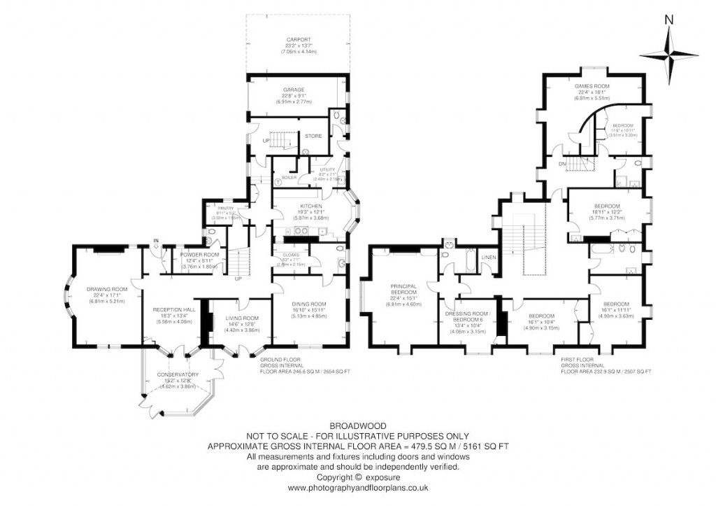
Accommodation:
Ground Floor: Entrance Vestibule, Reception Hall, Drawing Room, Dining Room, Sitting Room, Conservatory, Dining Kitchen, Utility Room with WC, Boot Room with WC, Cloakroom with WC, Two Store Rooms and a Pantry.
First Floor: Galleried Landing, Principal Bedroom with Large Dressing Room/Bedroom 7 and a Separate Bathroom, Five Further Double Bedrooms, Family Bathroom and a Shower Room
Cellar: Boiler Room/cellar store
Garden: Beautiful, mature gardens surround the property with manicured lawns, colourful herbaceous borders, sun terraces and a vegetable garden, together with further amenity grounds and woodland beyond the burn
Garage: Single garage/workshop adjoining the house
Outbuildings: Car port and two timber garden sheds
About: 1.3 acres
Council Tax: Band H
EPC Rating: Band E
Tenure: Freehold