5 Bedroom Detached House
£4,000,000
Rodona Road, St George's Hill, Surrey

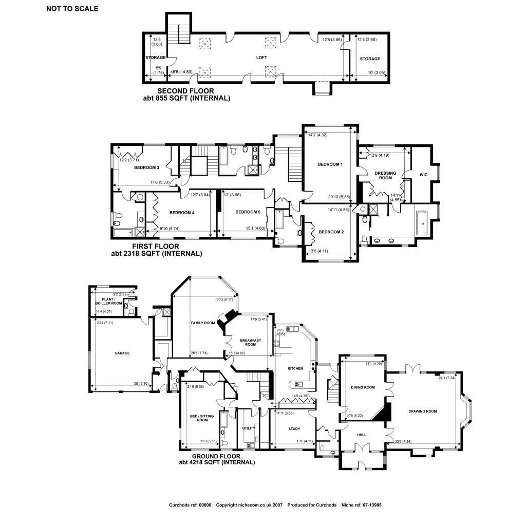
Floorplans For Rodona Road, St George's Hill, Surrey
EPC Graph for Rodona Road, St George's Hill, Surrey}

Description


Oakover is a most splendid detached family home with origins thought to date back to 1922. The house is now in need of considerable refurbishment and it provides accommodation extending to about 7,300sqft over three floors

Set in a wonderfully private position at the end of Rodina Road in circa 2 acres, the plot is sold with consent to build a brand new home of circa 14,750 Sifts (Ref: 2022/1815) with the planning obtained by Ascot Design. The property backs onto woodland and has a unique exit/entrance giving quick access in and out of St George's Hill
Curchods

Curchods

Portmore House, 54 Church Street
Weybridge
Surrey
KT13 8DP

+44 (0)1932 843322

Reference: PRI250010

Request a viewing for this property

Simply fill out the form below or alternatively call us on 020 7839 0888

* Mandatory fields