4 Bedroom Detached House
£895,000
Edinburgh

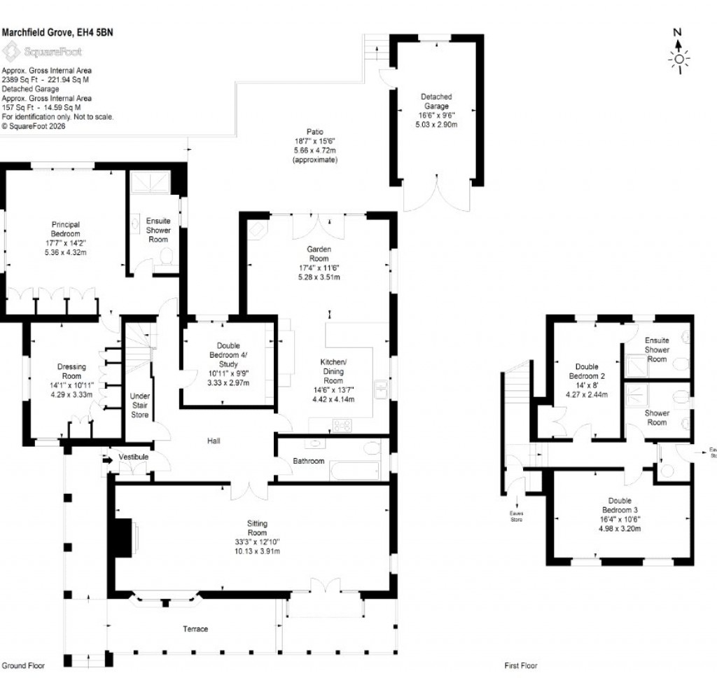
Floorplans For Edinburgh
EPC Graph for Edinburgh}

Description


Key Features

  • Detached 1920s family home over two floors
  • Three bedrooms, three bathrooms
  • Dedicated home office
  • Open-plan kitchen, dining and living space with wood-burning stove
  • Principal bedroom with dressing room and en-suite
  • Secure off-street parking for five vehicles, electric car charger in driveway, and detached garage
  • Large private garden with summer house and garden store
  • Refurbished by well-known local builder Bruce Collie
  • Council Tax Band: G
  • Tenure: Freehold
3 Marchfield Grove is a beautifully presented 1920s detached family home, arranged over ground and first floors, quietly positioned in a peaceful cul-de-sac just off Queensferry Road. Set well back from the road, the property enjoys a deceptively large and private garden to the side and rear, together with secure off-street parking for a minimum of five vehicles behind an electric gate, including an electric car charger in the driveway. Summary of Accommodation: An attractive front veranda provides a charming and sheltered spot to enjoy afternoon or early evening sunshine and creates an appealing approach to the property. The front door is located to the side and opens via an entrance vestibule into a welcoming central hall. The formal sitting room to the front of the house is full-width and features a gas fire with limestone surround. The room offers two distinct south-facing seating areas, flooded with natural light through attractive double-glazed sash and case windows. To the rear, the heart of the home is a superb open-plan kitchen, living, and dining space. The kitchen is fitted with fully integrated appliances and flows into a dining area comfortably accommodating six to eight people. The sitting area, centred around a wood-burning stove, opens via double doors onto the rear patio, creating a seamless connection to the garden and ideal for family living and entertaining. Also on the ground floor is a generous principal bedroom suite with dressing room - easily converted back into a fourth bedroom if required - and an en-suite shower room finished with dark tiling. Completing the ground floor are a home office with fitted bookcases, a family bathroom, and a hall storage cupboard. The first floor offers further flexible accommodation, including a good-sized rear bedroom with en-suite shower room and a front double bedroom with excellent views across Blackhall. There is an additional shower room and access to eaves storage cupboards from the landing. Externally, the property benefits from a detached single garage with power and water supply. The mature garden is a particular highlight, featuring multiple seating areas, established planting, fruit trees, a summer house, and a separate garden store. The house was refurbished by Bruce Collie, a highly regarded local builder. EPC: C Council Tax Band: G Tenure: Freehold Viewing strictly by appointment.

Reference: PER260016

Request a viewing for this property

Simply fill out the form below or alternatively call us on 020 7839 0888

* Mandatory fields