1 Bedroom Lower Ground Floor Flat
£265,000
Edinburgh

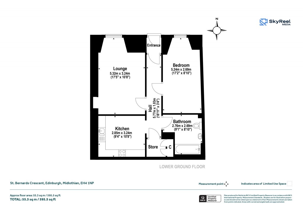
Floorplans For Edinburgh
EPC Graph for Edinburgh}

Description


Nestled within one of Edinburgh’s most prestigious and picturesque New Town crescents, this stunning one-bedroom lower ground floor flat offers a superb blend of classic period character and contemporary comfort. Beautifully presented and well-proportioned throughout, the property extends to approximately 595.5 sq. ft and has been designed to make excellent use of space and natural light. The welcoming entrance hall leads to a generous lounge featuring a large bay window that floods the room with light, creating an inviting space ideal for both relaxing and entertaining. The stylish and well-equipped kitchen provides ample storage and workspace, with integrated appliances and room for informal dining. The spacious double bedroom enjoys a peaceful rear aspect, while the modern bathroom is fitted with a sleek three-piece suite, including a shower over the bath. Additional features include a useful store cupboard, gas central heating, and residents’ permit parking. Residents have access to the beautifully maintained St. Bernard’s Crescent Gardens, a tranquil private green space at the heart of the crescent, subject to a modest annual fee. Summary of Accommodation: Entrance Vestibule, Hallway, Lounge, Kitchen, Bedroom, Family Bathroom, Store Room Tenure - Freehold Council Tax - D EPC - E

Reference: PER251013

Request a viewing for this property

Simply fill out the form below or alternatively call us on 020 7839 0888

* Mandatory fields