7 Bedroom Terraced House
£2,500,000
Edinburgh

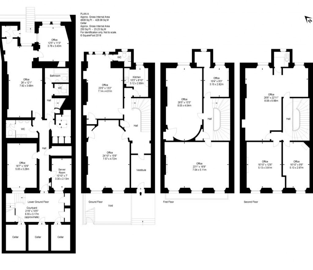
Floorplans For Edinburgh

Description


37 + 37a Manor Place together present a rare and exciting opportunity to acquire a complete, stone-built townhouse with its own self-contained lower ground floor flat, located in the heart of Edinburgh’s prestigious West End. Extending to approximately 4,482 sq ft in total, plus an additional 251 sq ft of lined cellars and stores, the property offers remarkably generous, flexible, and beautifully finished family accommodation across four floors. The main townhouse, extending to 3,589 sq ft, has been meticulously refurbished to an exceptional standard, showcasing period elegance blended with modern comfort. A particularly impressive feature is the interconnection between the sitting room and the kitchen/dining room, an arrangement rarely found in West End townhouses and one that creates an exceptional flow for both day-to-day family living and entertaining. A beautiful, sweeping stair rises through the house, and the property enjoys magnificent views over St Mary’s Episcopal Cathedral, with far-reaching vistas towards the Pentlands. The lower ground floor flat is accessed via its own private front door and offers around 893 sq ft of immaculate accommodation. Finished with oak flooring, deep-pile bedroom carpets, and stylish bathrooms, it provides excellent flexibility, ideal as a guest suite, staff accommodation, home office space, or even a rental investment. Outside, there is a low-maintenance private rear garden perfect for al fresco dining, and the property benefits from two clear off-street parking spaces, a rarity for the city centre. There is also a roof terrace with spectacular views and a well maintained front basement area. EPC: D Council Tax Band: H Tenure: Freehold Viewing by appointment.

Reference: PER250942

Request a viewing for this property

Simply fill out the form below or alternatively call us on 020 7839 0888

* Mandatory fields