2 Bedroom Ground Floor Flat
£245,000
Edinburgh

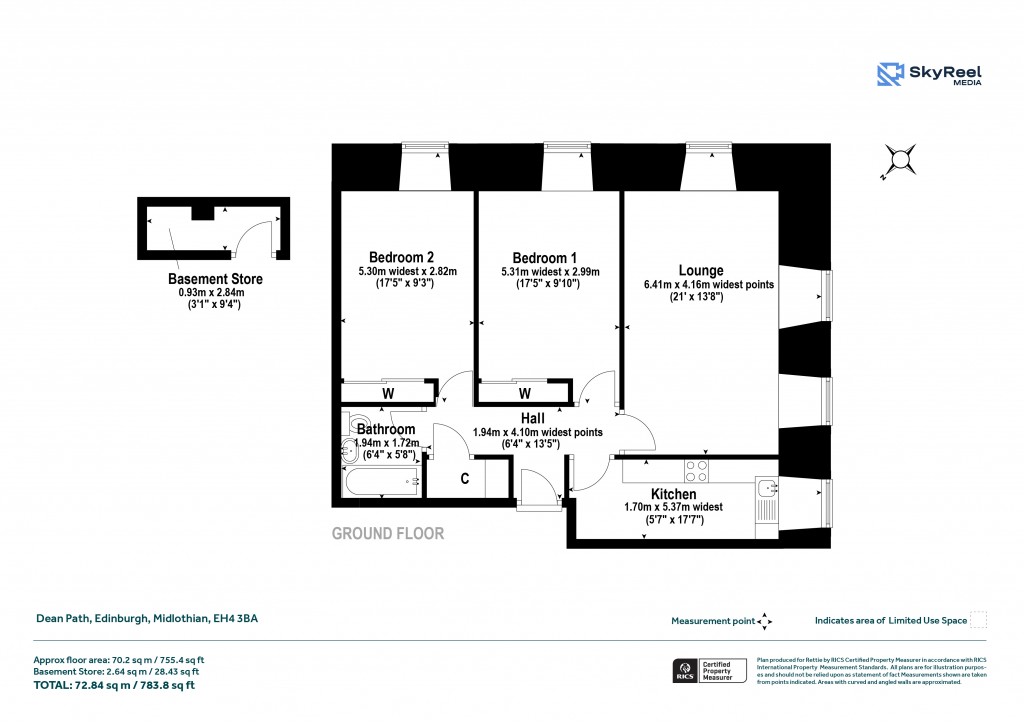
Floorplans For Edinburgh
EPC Graph for Edinburgh}

Description


Flat F, 2A Dean Path is a characterful two-bedroom ground floor apartment set in the heart of Edinburgh’s historic Dean Village, one of the city’s most picturesque and tranquil neighbourhoods. The property enjoys access to a communal garden overlooking the Water of Leith, providing a truly charming setting in a highly desirable location. The flat offers generously proportioned accommodation with plenty of potential to upgrade and modernise to suit individual tastes. The bright and spacious lounge benefits from large windows which fill the room with natural light, and the adjoining kitchen provides ample space and scope for reconfiguration. Both bedrooms are well-sized doubles with built-in storage, and the bathroom is neatly arranged. A welcoming hallway with storage cupboards links the accommodation. A separate basement store offers valuable additional storage, ideal for bikes or outdoor equipment. This property presents a rare opportunity to acquire a home in one of Edinburgh’s most sought-after and historic locations, combining spacious accommodation with exceptional potential for renovation. Summary of Accommodation: Hall, Lounge, Kitchen, Double Bedroom 1, Double Bedroom 2, Bathroom, Basement Store, Communal Garden Tenure - Freehold Council Tax - E EPC - C

Reference: PER250927

Request a viewing for this property

Simply fill out the form below or alternatively call us on 020 7839 0888

* Mandatory fields