5 Bedroom Semi Detached House
£1,550,000
Edinburgh

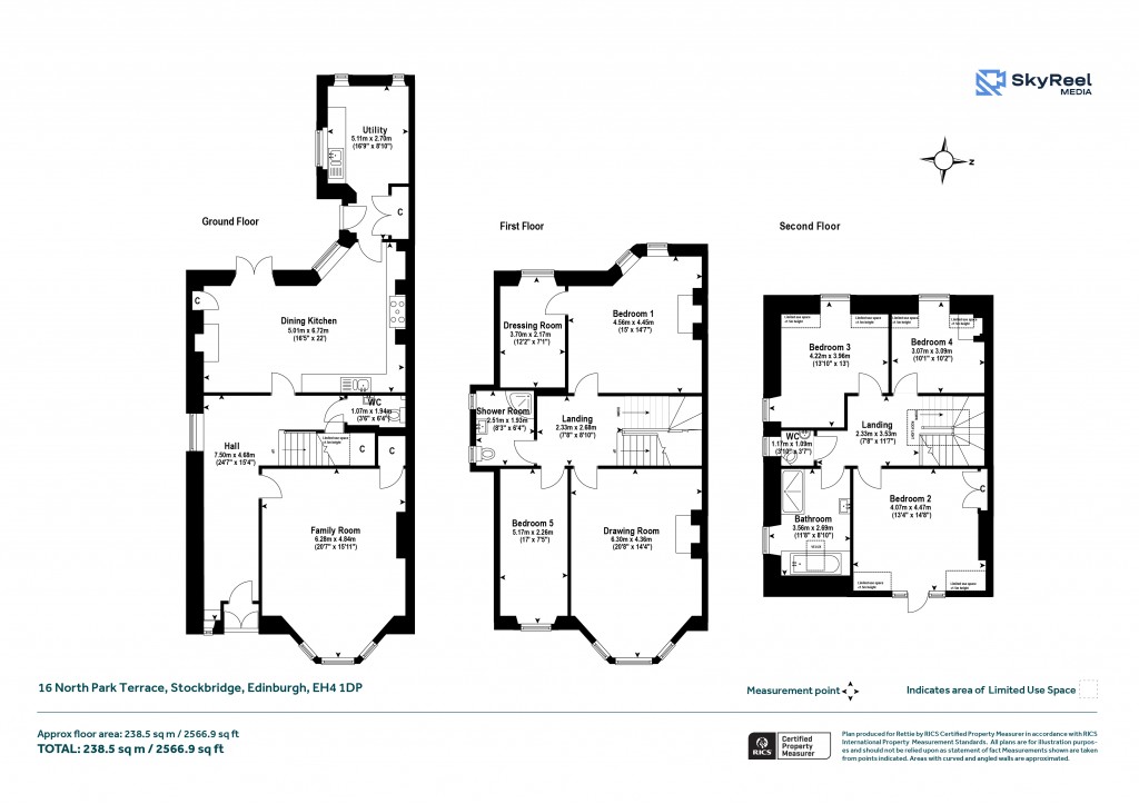
Floorplans For Edinburgh
EPC Graph for Edinburgh}

Description


Key Features

  • Key Features:
  • Spacious Victorian end-of-terrace family home in central Stockbridge
  • Over 2,500 sq ft across three levels
  • Retained period features including high ceilings, decorative cornicing, Victorian staircase, and top-floor cupola
  • Open views over Inverleith Park and the city skyline
  • Elegant drawing room with bay window and fireplace
  • Five/six bedrooms and three bathrooms
  • Large west-facing rear garden suitable for children and outdoor living
  • Potential to extend, subject to necessary consents; neighbouring properties provide a precedent
  • Quiet, family-friendly street
  • Walking distance to Stockbridge amenities, Fettes College, and Edinburgh Academy
  • Council Tax Band: G
16 North Park Terrace is a beautifully presented Victorian end-of-terrace family home, extending to over 2,500 sq ft across three levels. Peacefully positioned at the end of a quiet cul-de-sac, the property enjoys a wonderful sense of privacy while boasting stunning open views across the Edinburgh Academicals Rugby pitches, Inverleith Park, Inverleith Pond and towards Edinburgh Castle. Carefully refurbished shortly after its acquisition by the present owners, this has been a much-loved and exceptionally well-maintained home, combining period character with practical family living. Original features, including high ceilings, decorative cornicing, a grand Victorian staircase, and a spectacular top-floor cupola, are retained throughout, adding elegance and charm while flooding the home with natural light. Situated in the heart of Stockbridge, the property enjoys a generous west-facing rear garden captures the afternoon and evening sun, offering an ideal space for children to play and for family entertaining. North Park Terrace itself is renowned for its friendly and welcoming community, making it one of Stockbridge’s most desirable streets for families. EPC: D Council Tax Band: G Tenure: Freehold Viewing strictly by appointment.

Reference: PER250867

Request a viewing for this property

Simply fill out the form below or alternatively call us on 020 7839 0888

* Mandatory fields