2 Bedroom Lower Ground Floor Flat
£500,000
Edinburgh, Midlothian

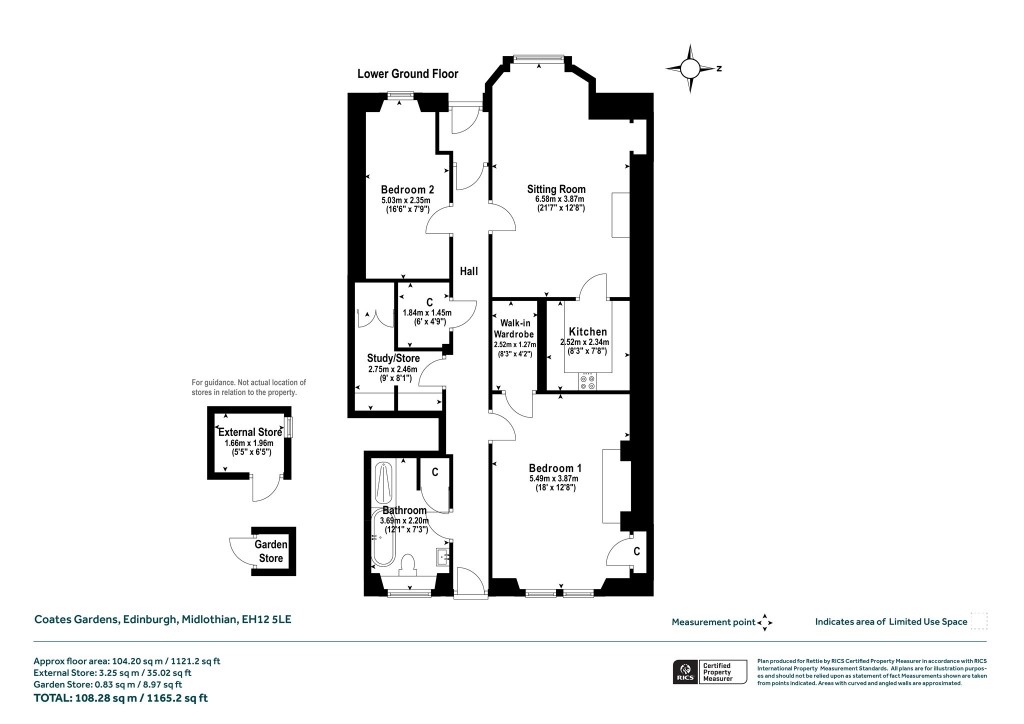
Floorplans For Edinburgh, Midlothian
EPC Graph for Edinburgh, Midlothian}

Description


** NOW FIXED PRICE £500,000 (£25k below HR) ** Situated in the heart of Edinburgh’s fashionable West End, 30A Coates Gardens is a beautifully presented two-bedroom plus study, main door, lower ground-floor apartment offering the perfect fusion of traditional charm and contemporary living. This rarely available property boasts a thoughtfully designed layout, including a generous sitting / dining room with working open fireplace, ideal for modern lifestyles, a statement fully fitted kitchen, two double bedrooms - the principal bedroom benefiting from a walk-in wardrobe area, stylish bathroom with free standing bath and separate shower, and a very useful study/home office room. Private front patio space, East-facing tiered garden, good storage spaces, this property is presented in walk-in condition, together with its ideal location positioned moments from Haymarket Station and a short stroll to the city centre, this is an outstanding opportunity for professionals, downsizers, or investors seeking a turnkey home in an unbeatable location. Summary of Accommodation: Entrance Vestibule, Hall, Sitting Room/Dining Room, Kitchen, Principal Bedroom with walk-in Wardrobe, Bedroom Two, Bathroom, Study Space, Hall Storage Cupboard Externally: Front Patio Area, Garden Store, Under Pavement Cellar, Rear Garden EPC: C Council Tax Band: F Tenure: Freehold Viewing by appointment.

Reference: PER250687

Request a viewing for this property

Simply fill out the form below or alternatively call us on 020 7839 0888

* Mandatory fields