2 Bedroom Upper Floor with Lift Flat
£425,000
Edinburgh, Midlothian

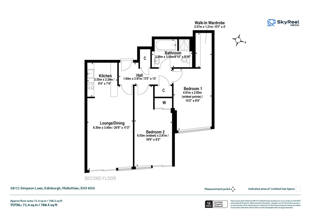
Floorplans For Edinburgh, Midlothian
EPC Graph for Edinburgh, Midlothian}

Description


Situated within the highly sought-after and award-winning Quartermile development, this beautifully presented two-bedroom apartment with secure allocated parking place offers contemporary urban living in one of Edinburgh’s most desirable locations. With an approximate internal area of 786 sq ft (71.3 sq m) and access to the development’s exclusive private gardens, the property spacious accommodation and perfectly suited for professionals, investors, or anyone seeking stylish city centre living. The stylish accommodation comprises hall with two good sized storage cupboards, open plan living, dining, kitchen - the kitchen is ergonomically designed with fully fitted sleek wall and floor mounted cabinetry accented by granite worksurfaces with a range of integrated applicances, two good sized double bedrooms, the principal bedroom with walk-in, fitted dressing room, and a sleek modern fully fitted bathroom including separate shower and bath completes the accommodation. The property benefits from double glazing and central heating throughout, ensuring year-round comfort and energy efficiency. Situated on the second floor of the building, there is a lift access to all floors including garage level and a light-filled, well-maintained communal lobby, stairwell, and internal hall. A secure video entry phone system provides peace of mind. The communal estate grounds at the Quartermile development are maintained to an exceedingly high standard and include sweeping, gated lawn gardens. Enclosed beyond sandstone walls and traditional wrought iron railings, the private south-facing grounds have an iconic outlook over Edinburgh’s much-beloved park, The Meadows. EPC: B CT Band: F Tenure: Freehold Viewing by appointment.

Reference: PER250258

Request a viewing for this property

Simply fill out the form below or alternatively call us on 020 7839 0888

* Mandatory fields