1 Bedroom Ground Floor Flat
£245,000
Edinburgh, Midlothian

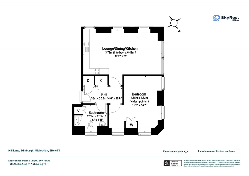
Floorplans For Edinburgh, Midlothian
EPC Graph for Edinburgh, Midlothian}

Description


20/2 Mill Lane is a wonderfully bright, well-proportioned, one-bedroom, raised ground floor apartment benefitting from private residents’ parking in the heart of cosmopolitan Leith. This contemporary apartment, recently comprehensively refurbished by the current owner, forms part of a unique ex-hospital redevelopment (Sundial Dev elopments). With its well-proportioned rooms, it offers excellent accommodation throughout in true turnkey condition and would make a wonderful home for professionals, those wishing to downsize, or indeed the buy-to-let investor. Summary of Accommodation: Entrance hall with two good sized storage cupboards, entry phone handset; open plan kitchen / dining / sitting room; double bedroom with integrated wardrobe and drawer units; shower room; very useful loft storage accessed by Ramsay style pull down ladder in the hall area. Key Features / Refurbishment: New fully fitted modern kitchen with Fired Earth tiles and designer lighting Engineered wood flooring throughout (except the shower room) New boiler; New column radiators Updated electrics Integrated wardrobe and two chests of drawers in the bedroom - electric blinds in the bedroom New shower room with heated towel radiator, marble tiled floor, underfloor heating Outdoor Space: Residents allocated parking and well-maintained communal grounds. Tenure: Freehold EPC: D Council Tax Band: C Viewing by appointment.

Reference: PER241026

Request a viewing for this property

Simply fill out the form below or alternatively call us on 020 7839 0888

* Mandatory fields