4 Bedroom Semi Detached House
£845,000
Edinburgh

Floorplans For Edinburgh
EPC Graph for Edinburgh}

Description


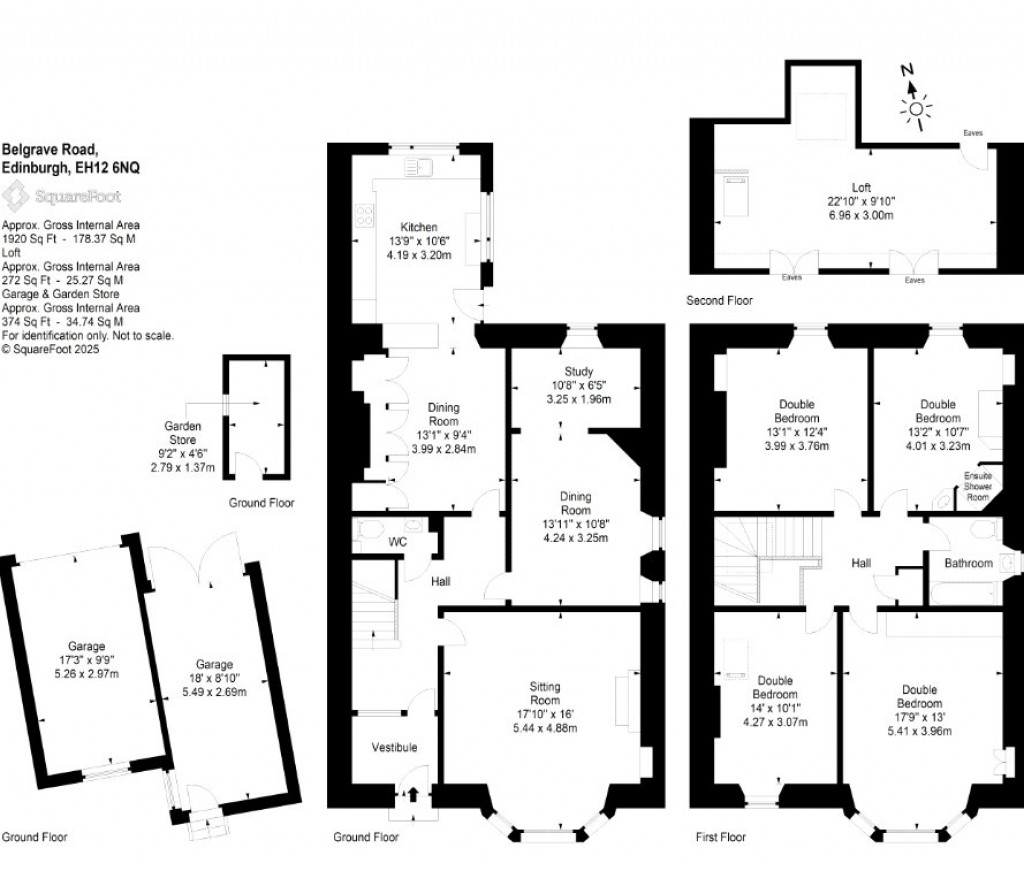
Set on one of Corstorphine's most sought-after residential streets, 68 Belgrave Road is a beautifully proportioned four-bedroom semi-detached Edwardian villa offering generous family accommodation, together with a private garden, two single garages and a garden store. The property seamlessly blends period charm with modern comfort, retaining elegant original features such as high ceilings, decorative cornicing, bay windows and an impressive entrance vestibule. The ground floor comprises a welcoming hallway, a bright and spacious sitting room with bay window to the front, and two versatile dining rooms ideal for formal and family entertaining. To the rear, the contemporary kitchen enjoys direct access to the garden and is complemented by a study and cloakroom/WC. Upstairs, the first floor features four well-proportioned double bedrooms, including one with a shower, and a stylish family bathroom. In addition, there is a generous floored loft space, perfect for extra storage. This area previously had planning consent to be converted into an additional level, offering excellent potential for a further bedroom, playroom, or home office. Externally, the property benefits from a delightful enclosed rear garden, two single garages and a garden store. Perfectly positioned directly opposite Corstorphine Tennis Club, the house enjoys a lovely outlook and a strong sense of community, while also being within easy reach of the city centre, excellent local schooling, and the superb amenities of Corstorphine and Murrayfield. There are excellent transport links, including convenient access to the tram network, Edinburgh Airport and major road routes. A truly exceptional family home in one of Edinburgh’s most desirable areas. EPC: D Council Tax Band: G Tenure: Freehold Viewing strictly by appointment.

Reference: PER240047

Request a viewing for this property

Simply fill out the form below or alternatively call us on 020 7839 0888

* Mandatory fields