3 Bedroom Semi Detached House
£1,550,000
Edinburgh

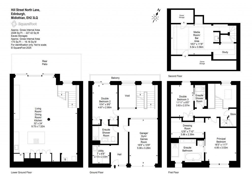
Floorplans For Edinburgh
EPC Graph for Edinburgh}

Description


Hidden away on a peaceful cobbled lane, 33 Hill Street North Lane is one of only two bespoke, architect-designed contemporary mews houses in this coveted New Town setting. Extending to almost 2,500 sq ft across four light-filled levels, the property combines striking design, exceptional craftsmanship, and the very highest specification to create a home of rare distinction. From the sculptural blackened steel and polished-concrete staircase rising through a full-height atrium, to the seamless integration of walnut joinery and cutting-edge home automation, every detail has been meticulously considered. The result is a turnkey residence of international quality, perfectly attuned to modern living. With its private patio garden, integrated garage, and unrivalled location just moments from George Street and the city centre, this is a one-off opportunity to own a true contemporary landmark in the heart of Edinburgh. EPC: B Council Tax Band: G Tenure: Freehold Viewing by appointment only.

Reference: PER221300

Request a viewing for this property

Simply fill out the form below or alternatively call us on 020 7839 0888

* Mandatory fields