Description
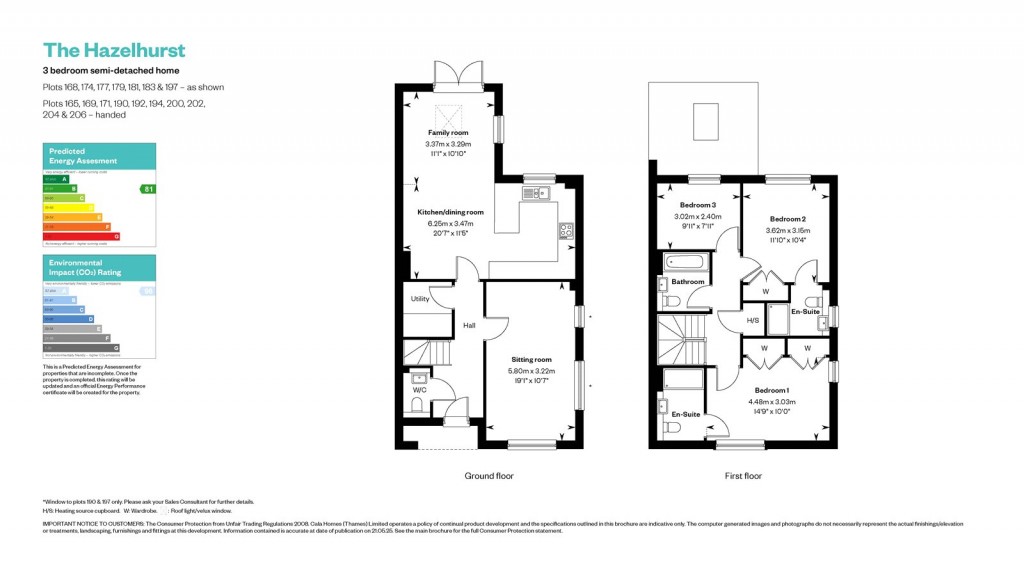
Key Features
- Siemens integrated appliances
- Large, bright sitting room
- Laufen sanitaryware with Minoli tiles
- Air source heat pump
- Under floor heating to ground floor
- Two fitted wardrobes & en-suite to bedroom 1
- En-suite & fitted wardrobe to bedroom 2
- Allocated parking
- Electric charging point
- 10 year New Build Warranty
- Council Tax Band: N
- Tenure: Freehold
Alongside its superb transport links, outstanding schools, and leafy suburban charm, Weybridge boasts a lively blend of artisan independents, well-loved boutiques, and inviting eateries. The High Street is easy to reach, with plenty of parking available, or simply enjoy the scenic walk or cycle into town.
Service Charge: Approximately £420 per annum
*All fixtures and fittings available if you legally complete before 30th June 2026. Furniture is not included in the sale.
Images shown are taken from various Cala showhomes or have been generated by computer (for indicative purposes only and are not to be presumed to be entirely accurate.)