4 Bedroom Detached House
£835,000
Stapleton Close, Egham

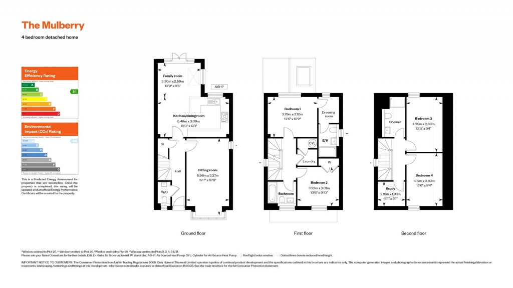
Floorplans For Stapleton Close, Egham
EPC Graph for Stapleton Close, Egham}

Description


Key Features

  • READY TO MOVE INTO & with £31,750 Stamp Duty paid*
  • Energy efficient home with sustainable features
  • Flooring throughout & prefitted window treatments
  • Open plan kitchen with integrated Bosch appliances
  • Dressing room and ensuite to bedroom one
  • First floor laundry room
  • Top floor separate study
  • Driveway parking for 2 cars and electric car charging point
  • 10 year new build warranty
  • Council Tax Band: N
  • Tenure: Freehold
Conveniently situated just a 15 minute walk to Egham High Street and its vibrant shops, cafes and restaurants and with great rail connections to London Waterloo, this fantastic residence suits commuters and families alike.

Service Charge: Estimated at £500 per annum

*£31,750 stamp duty paid when purchased for £835,000. Please speak with the Sales Consultant for more information.

N.B - Internal images are of the show home and are for indicative purposes only.
Curchods

Curchods

2 Chobham Road
Ottershaw
Surrey
KT16 0NL

+44 (0)1932 874488

Reference: NEH250199

Request a viewing for this property

Simply fill out the form below or alternatively call us on 020 7839 0888

* Mandatory fields