5 Bedroom Detached House
£3,500,000
Traps Lane, New Malden, Surrey

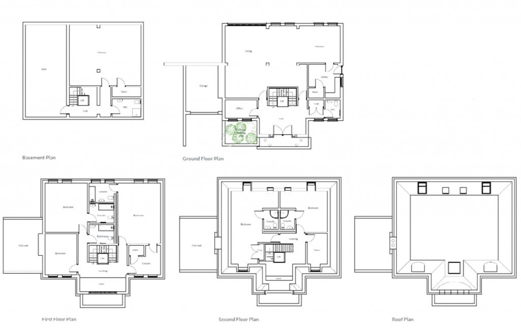
Floorplans For Traps Lane, New Malden, Surrey Floorplans For Traps Lane, New Malden, Surrey

Description


Key Features

  • Open-plan kitchen/living room with separate utility
  • Basement gym and cinema room
  • Principal bedroom with dressing room
  • Air conditioning
  • Lift access to all floors
  • Double garage and off-street parking
  • Landscaped garden
  • Tenure: Freehold
The property is within the Old Coombe House Estate, on the south slope of Coombe Hill. Coombe is known for its wide open residential roads and fabulous golf courses. There is easy access to Richmond Park and Wimbledon Common, perfect for walking, cycling or riding which are around 1,200m away. Locally are a number of excellent schools with Coombe Hill Infants, Holy Cross and Rokeby all within 900m. Tiffin Boys and Tiffin Girls together with Kingston Grammar School and Kings College school are all within easy reach. New Malden centre offers shops for everyday use including a large Waitrose supermarket with Kingston town centre offering extensive shopping. Wimbledon Village is around two miles away with its charming collection of boutiques, cafes and restaurants. Local shops are on Coombe Lane around 1,200m distant.

Planning application: 19/01218/FUL

NB: The photos featured are CGIs
Curchods

Curchods

31 High Street
New Malden
Surrey
KT3 4BY

+44 (0)208 942 8887

Reference: NEH250173

Request a viewing for this property

Simply fill out the form below or alternatively call us on 020 7839 0888

* Mandatory fields