5 Bedroom Detached House
£1,250,000
Billericay, Essex

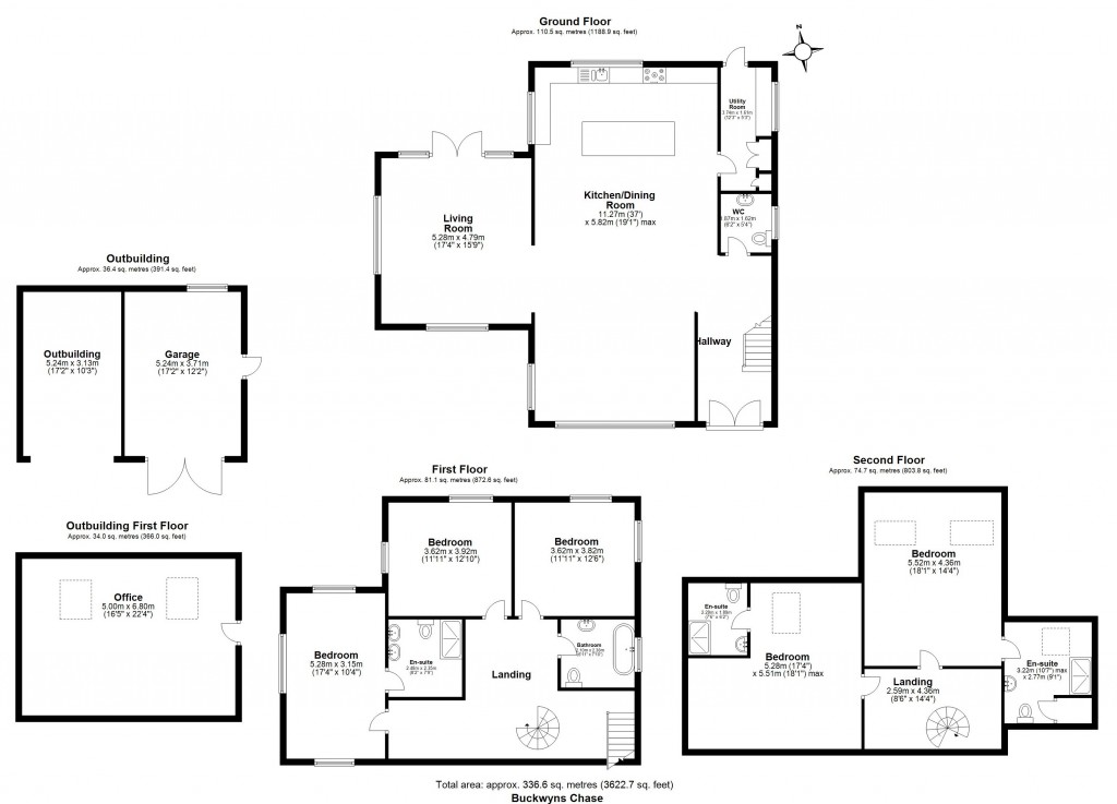
Floorplans For Billericay, Essex
EPC Graph for Billericay, Essex}

Description


Key Features

  • Stunning Barn Conversion
  • Sought-after location, quiet country lane
  • Set over three levels
  • Five bedrooms, three en-suite's
  • Family bathroom, ground floor cloakroom
  • Open-plan living space with full height gallery
  • Underfloor heating
  • Detached garage with office space above
  • Easy access Billericay station and amenities
  • Council Tax Band: H
  • Tenure: Freehold
** GUIDE PRICE £1,250,000- £1,350,000 **

A stunning Barn Conversion located in a quiet country lane in a semi-rural countryside setting, yet within easy reach of Billericay main line station, local shops and the vibrant High Street. You can also reach Ingatestone village and Shenfield station (Elizabeth Line) by car.

This black weatherboarded Barn Conversion, built just over 10 years ago, offers a stylish modern interior with full height galleried reception areas ideal for the family or entertaining. Set over three levels, there are three dual aspect double bedrooms (one with en-suite) and a family bathroom to the first floor and a further two en-suite bedrooms on the second floor (accessed via a wrought iron spiral staircase). The entrance hall with glass atrium roof floods the hallway with natural light and offers a ground floor cloakroom and opens into the open-plan living space. The kitchen features a range of modern fitted units with built-in range cooker, marble worktops, a central island and further breakfast bar. Steps lead down to the dining/living area featuring a stunning full height window open to the galleried landing above. There is a further reception room with French doors out to the garden and freestanding woodburning stove. Off the kitchen is a useful utility room and the property features underfloor heating.

The property has a gated access offering ample off road parking and access to the detached garage with double doors and storage building attached. Above the garage is a useable office ‘work from home’ space with power and light connected together with a vaulted ceiling. The gardens of approx. 0.5 acre, surround the Barn and are mainly laid to lawn with mature trees and shrubs, there is also a patio area. This delightful setting offers a mix of open countryside, yet convenient for local amenities and transport links including Billericay main line station, offering frequent services into London Liverpool Street. The area offers excellent schools and leisure facilities.

Property Information: Tenure Freehold, Council Tax Band H (Basildon District Council), EPC rating D, mains services connected. Ref: NBC210551.

Property Information: Tenure Freehold, Council Tax Band H (Basildon District Council), EPC rating D, mains services connected. Ref: NBC210551.
Billericay High Street and main line station approx. 2.5 miles (London Liverpool Street approx. 30 minutes) | Brightisde Primary School 2 miles | Mayflower High School approx. 3.5 miles
Stock Brook Golf & Country Club approx. 3.5 miles | Excellent main road links (A127/A12/M25), London Southend Airport approx. 30 minutes by car

Reference: NBC210551

Request a viewing for this property

Simply fill out the form below or alternatively call us on 020 7839 0888

* Mandatory fields