4 Bedroom Detached House
£525,000
Clovenfords, Galashiels, Scottish Borders

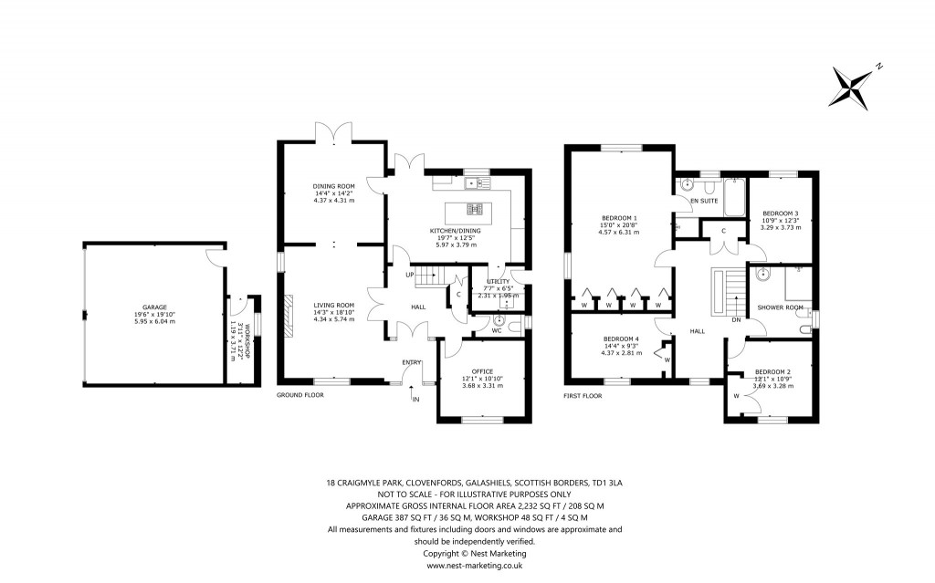
Floorplans For Clovenfords, Galashiels, Scottish Borders
EPC Graph for Clovenfords, Galashiels, Scottish Borders}

Description


18 Craigmyle Park is a charming four-bedroom detached family home sitting within a peaceful enclave of properties in Peel just outside of the village of Clovenfords. Sitting within a generous plot the property boasts large expansive gardens, flexible reception spaces and a large double garage. The house is ideally placed, nestled in the stunning Tweed Valley with some of the best mountain biking, hill running and walking the country has to offer is on your doorstep, whilst being just a short drive into Galashiels and easy commute into Edinburgh. Key Features: • Generous plot with immaculate front, rear and side wraparound gardens. • Solar panels to the rear and side elevations of the property contributing to heating and hot water via feed-in tariff. Excess can be sold back to the grid. • Four generous double bedrooms with built-in storage. • Ample off-street parking for several cars. • Local primary school 2 miles away in Clovenfords. • Large double garage, excellent for storage or as a self-contained workshop. • Easy access to an array of walking, running and cycling trails in the Tweed Valley. • Easy drive to Galashiels, Peebles or Selkirk. This wonderful family home presents incoming purchasers an excellent opportunity to acquire a stunning and well-cared for home in a peaceful countryside location with easy access to a wealth of local Scottish Borders amenities. Accommodation comprises: Ground Floor: Vestibule, hallway, living room, dining room, dining kitchen, office/snug, utility room, WC. First Floor: Principal bedroom with en-suite bathroom, three further double bedrooms, showerroom, hallway storage cupboard. Externally the property benefits from mature wraparound gardens, a large double garage with additional work-shop and ample driveway parking. EPC: B Council Tax Band: G Tenure: Freehold Viewing by appointment via Rettie Borders.

Reference: MEL250090

Request a viewing for this property

Simply fill out the form below or alternatively call us on 020 7839 0888

* Mandatory fields