4 Bedroom Semi Detached House
£465,000
Ashkirk, Selkirk

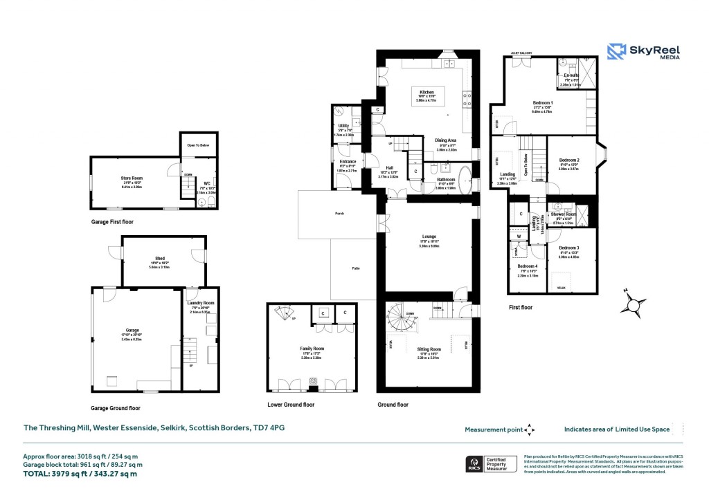
Floorplans For Ashkirk, Selkirk
EPC Graph for Ashkirk, Selkirk}

Description


The Threshing Mill is an utterly charming four-bedroom steading conversion set in the charming hamlet of Wester Essenside just 3 miles from the village of Ashkirk. The property has been sensitively renovated and upgraded by the current owners to offer immaculate interiors throughout whilst retaining many of the charming original features. The ground floor comprises a generous dining kitchen with capacious storage, large island and shaker style cabinetry, the main reception hall benefits from a downstairs bathroom with rolltop bathtub and WC, following on there is a generous sitting room with exposed beams and french doors leading to a sunny cobbled courtyard perfect for al-fresco dining or sunbathing. Completing the ground floor is a large mezzanine study which could easily double as a further reception room or a nursery, a spiral staircase leads to a lower public room currently set up as a cosy snug with wood burning stove and double french doors out to the front of the property. The first floor boasts four well-appointed double bedrooms – the principal benefitting from a large ensuite bathroom with walk-in shower. Completing the first floor is a further shower room serving the other bedrooms. Externally the property sits within mature gardens that are mostly laid to lawn, a charming stream runs through the garden attracting an array of wildlife including kingfishers, otters and other songbirds. A gravel driveway has ample parking for several vehicles. The double garage offers excellent external storage and benefits from power and a first floor with ample opportunities for conversion into external accommodation or home office space. The property is ideally placed only a short drive from the A7 connecting the property to the central Borders with ease. There are ample amenities on offer in the nearby towns of Selkirk & Hawick along with both primary and secondary schooling options. In all the property offer incoming purchasers an excellent opportunity to obtain a truly turn-key property is a peaceful rural location. Accommodation comprises: Ground Floor: Vestibule, hallway, sitting room, dining kitchen, family room, snug, bathroom, utility room. First Floor: Principal bedroom with en-suite, three further double bedrooms, showerroom. Externally the property benefits from a cobbled courtyard, wraparound gardens, large double garage with power and automatic roller doors with floored first floor and a separate single garage store. EPC: D Council Tax Band: E Tenure: Freehold Viewing by appointment via Rettie & Co

Reference: MEL230189

Request a viewing for this property

Simply fill out the form below or alternatively call us on 020 7839 0888

* Mandatory fields