Land
£245,000
Toppesfield, Halstead, Essex

Description


Key Features

  • The plot is 0.1 acres in size (STLS)
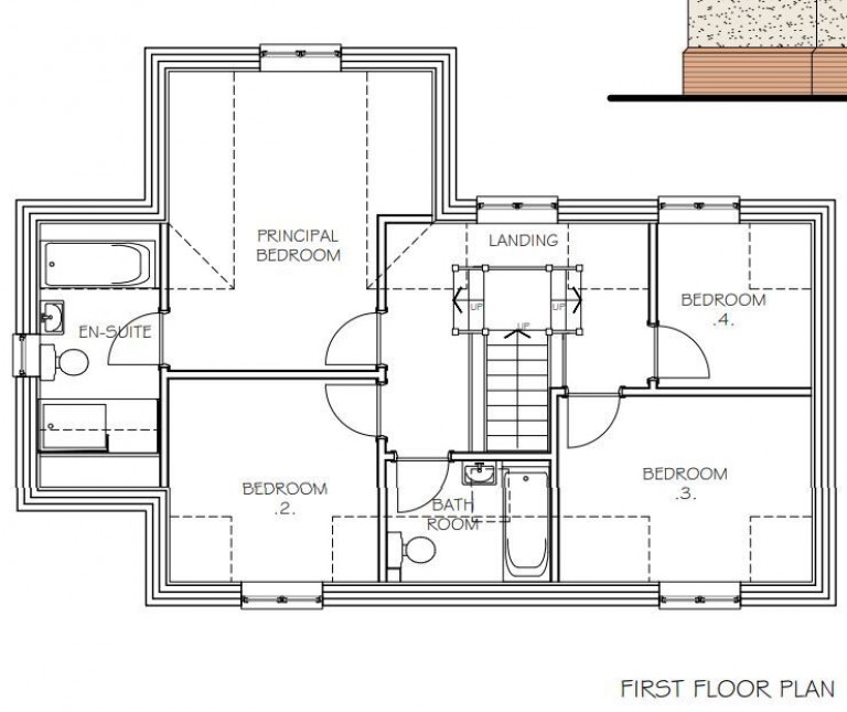
  • Planning permission for a detached 4 bedroom dwelling
  • Planning references: 23/01053/REM and 21/00574/OUT.
  • Desirable village location
  • Tenure: Freehold
The plot is 0.1 acres in size (STLS) with planning consent for a single dwelling.
Description
The plot extends to 0.1 acres (STLS) and is currently occupied by and existing structure of the former mission hall, along with associated outside space. Access is via a gated entryway directly from the highway.
The site is bounded by woodland on one side, with fields to the rear and an existing residential dwelling to the north.
The site benefits from mains electric and water connections, with sewage disposed of by septic tank.

Location
Located in the small village hamlet of Gainsford End, the site provides a fantastic rural location for a new home. The towns of Great Yeldham and Sible Hedingham are located just 3.5 and 4.5 miles away, and provide all the necessary amenities.
This unique and quaint opportunity provides a charming countryside location for a stunning new home.

Planning
The site was granted a Reserved Matters Planning Consent in December 2023, following an outline consent granted 2022 for a single four bedroom detached dwelling.
Planning references: 23/01053/REM and 21/00574/OUT.

Terms of Offer
Guide price for the property sold on an unconditional basis at £245,000
Beresfords would seek to be instructed as agent on all new homes being sold.

Reference: LNH250088

Request a viewing for this property

Simply fill out the form below or alternatively call us on 020 7839 0888

* Mandatory fields