Land
£350,000
Wickford, Essex

Description


Key Features

  • The plot is 0.31 acres in size (STLS
  • Detailed planning consent for a single dwelling
  • Planning Reference 24/01424/FUL
  • Located on a private road, with a secured private access
  • Tenure: Freehold
The plot is 0.31 acres in size (STLS) with detailed planning consent for a single dwelling. The site has been cleared of existing structures and vegetation with the new access works carried out.

Description
The plot extends to 0.31 of an acre (STLS) and has been cleared of the former vegetation which occupied it, levelled and new access gates and fence installed to the street frontage. To the boundaries lie existing residential properties, with areas of woodland and vegetation in the near vicinity.

The plot has consent for a self build unit.

Location
The site is located on a private road, with a secured private access. Wickford station lies 1.5 miles to the east and provides a direct line to London Liverpool Street in 39 minutes, furthermore, the A127 lies a short distance away, and provides access to the M25. The A130 located to the east provides direct access to Chelmsford, and the A12.

Planning
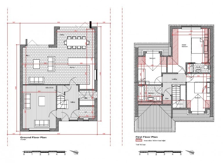
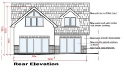
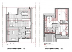
The site was granted planning permission under Planning Reference 24/01424/FUL for a proposed single detached chalet bungalow with parking and amenities. The dwelling extends to 1614 sqft and will comprise 3 bedrooms.

Terms of Offer
Guide price for the property sold on an unconditional basis at £350,000

Beresfords would seek to be instructed as  agent on all new homes being sold.

Reference: LNH250079

Request a viewing for this property

Simply fill out the form below or alternatively call us on 020 7839 0888

* Mandatory fields