Land
£800,000
Upminster

Description


Key Features

  • Land measuring 0.08 acre plot (STLS)
  • Development opportunity with full planning approval for 5 flats
  • Planning reference P1570.24 Havering Borough Council
  • Prime residential location
  • Close to Upminster Station
  • Tenure: Freehold
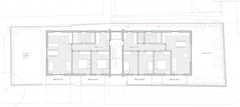
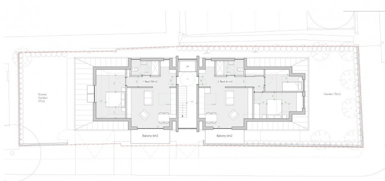
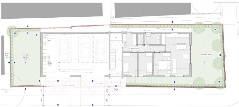
Development opportunity for 5 self-contained flats on a 0.08 acre plot (STLS).

Description
The site comprises of an existing two storey building with a small area of car parking. It has been granted detailed planning consent for 5 new residential units in March 2025. The site sits on the corner of Boundary Road and the A124 St Marys Lane and is bounded by existing residential and commercial to the rear.

Location
Located within a primarily residential area of Upminster, variety of amenities, including Waitrose, are within 0.5 of a mile. Upminster Station, providing National Rail services as well as District Line services is also located within 0.5 of a mile. Furthermore, the M25 and A127 junction is 3.2 miles away providing easy and convenient road connections.

Planning
The site was granted detailed planning consent in March 2025 by Havering Borough Council for the demolition of the existing building, and erection of a new 3 storey building comprising 5 residential units, along with associated parking and amenity space, under planning reference P1570.24.

Terms of Offer
The site is being sold on an unconditional basis with a guide price of £800,000.

Beresfords would seek to be instructed as the agent on all new homes being sold.

Please contact Beresfords Land Department for any further information or to arrange a viewing.

Reference: LNH230392

Request a viewing for this property

Simply fill out the form below or alternatively call us on 020 7839 0888

* Mandatory fields