0.1 Miles to Upminster Bridge Station & 0.8 Miles to Upminster Station
Fantastic Plot Circa 0.3 of an acre (unmeasured)
Two Garages - One Single & One Double
Wealth of potential to Convert/Reconfigure the Current Property but also Extend (STPP)
Council Tax Band: F
Tenure: Freehold
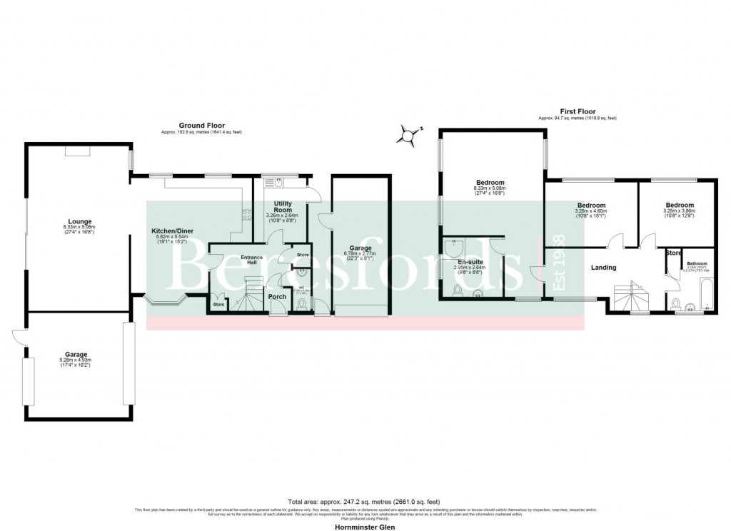
A rare opportunity to acquire this unique three bedroom home which sits on a plot of circa 0.3 acres. Formerly an orchard, this sizeable property was built in 1972 and has been occupied by the current vendor for 40 years. The ground floor has a spacious kitchen diner which opens to the 27' lounge overlooking the beautifully maintained garden. Additionally there is a utility room, which was the former kitchen and WC on the ground floor. The first floor boasts a 27' bedroom with four piece ensuite, two further double bedrooms and modern family bathroom. With a large landing, and generous rooms a fourth bedroom could easily be created. This fantastic home also benefits not only from a 19' garage with inspection pit but also a double garage providing ample additional parking, or giving the potential to convert to living space STPP.
Perfectly situated for Upminster Bridge Station just 0.1 miles away and a 0.8 mile walk to Upminster C2C Station. Centrally positioned for both Upminster & Hornchurch High Streets with their wide array of shops, restaurants and bars. Within close proximity of high achieving schools for all ages making this an ideal family home.
Reference: HOS250069
Request a viewing for this property
Simply fill out the form below or alternatively call us on 020 7839 0888