4 Bedroom Detached House
£495,000
Newton Mearns, Glasgow

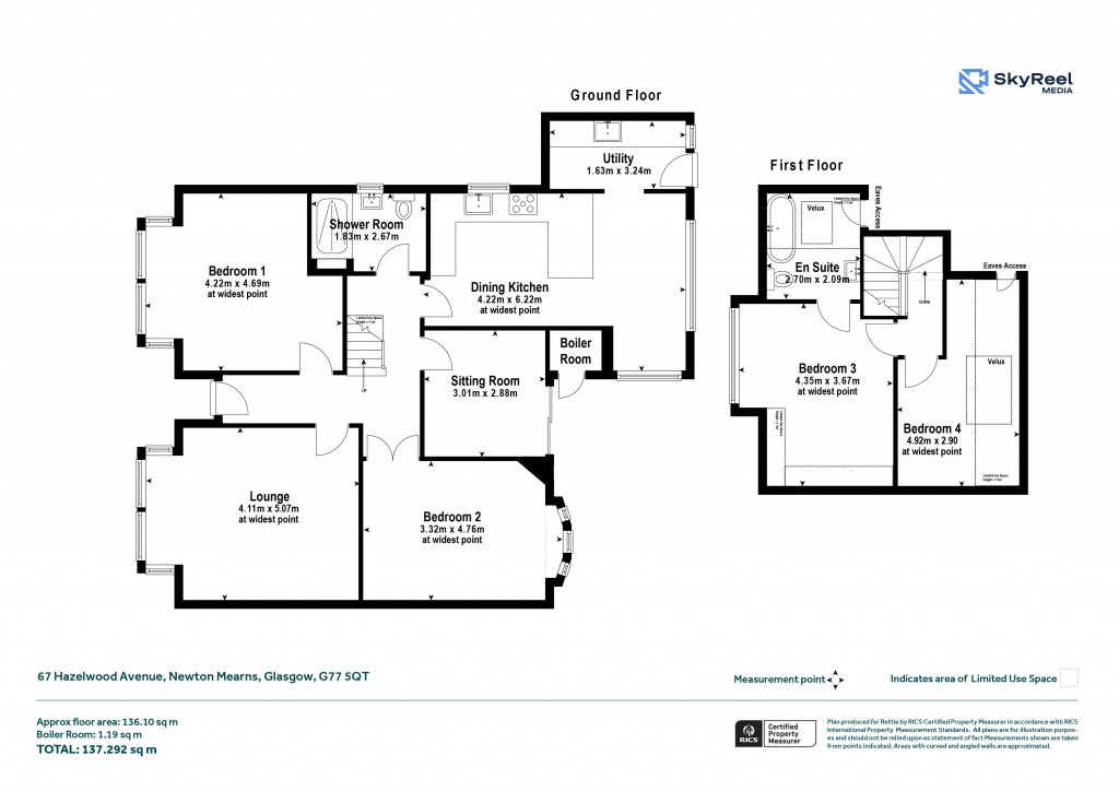
Floorplans For Newton Mearns, Glasgow
EPC Graph for Newton Mearns, Glasgow}

Description


This beautifully presented and deceptively spacious bungalow is set within a highly sought-after residential pocket of Newton Mearns and offers flexible accommodation formed over two levels. The property is ideally suited to a wide range of buyers, including families and those seeking adaptable living space close to excellent local amenities. On the ground floor, the accommodation comprises a welcoming reception hallway providing access to a generous lounge and a separate sitting/family room, both offering comfortable living and entertaining space. The heart of the home is the impressive dining kitchen, which provides ample room for dining and benefits from direct access to the utility room. There are two well-proportioned bedrooms on this level along with a modern shower room. The layout allows for excellent flexibility, with rooms easily adaptable for home working or additional living space if required. The upper level offers two further spacious bedrooms, including a principal bedroom with en suite facilities, providing an ideal private retreat. The first floor accommodation is complemented by excellent storage and natural light. The property further benefits from gas central heating and double glazing . Externally, there is a monoblocked driveway to the side providing off-street parking. The gardens to the front and rear are well maintained, with lawn areas offering ideal outdoor space for families, relaxation, and entertaining. Newton Mearns is one of East Renfrewshire’s most desirable residential locations, renowned for its excellent schooling catchment, including highly regarded primary and secondary schools. The property is conveniently positioned close to The Avenue Shopping Centre, offering a variety of shops, cafés, and services, with further amenities available nearby. The area also benefits from excellent transport links, access to leisure facilities, and attractive open green spaces, making it a popular choice for families and professionals alike. Freehold EPC D Council Tax G

Reference: GWS250688

Request a viewing for this property

Simply fill out the form below or alternatively call us on 020 7839 0888

* Mandatory fields