4 Bedroom Detached House
£465,000
Newton Mearns, Glasgow

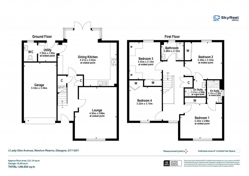
Floorplans For Newton Mearns, Glasgow
EPC Graph for Newton Mearns, Glasgow}

Description


This stunning four-bedroom detached home is positioned within a sought-after new David Wilson development in Newton Mearns, benefiting from excellent schooling catchments within East Renfrewshire and close proximity to a wide range of local amenities. The ground floor offers a well-balanced and family-friendly layout. A welcoming entrance hallway provides access to a spacious front-facing lounge, ideal for relaxing or entertaining. To the rear, the heart of the home is a generous dining kitchen with ample space for family dining and direct access to the garden, creating a seamless indoor-outdoor flow. Off the kitchen is a useful utility room and a convenient WC. The property further benefits from an internal single garage. On the first floor, the accommodation comprises four well-proportioned bedrooms. The principal bedroom enjoys the luxury of a private en suite shower room, while a second bedroom also benefits from its own en suite. The remaining two bedrooms are served by a modern family bathroom, all accessed from a bright central landing. Further features of the home include gas central heating, double glazing, and excellent storage solutions. Externally, the property is complemented by landscaped gardens to the front and rear, with the rear garden offering a decked terrace - perfect for outdoor dining and entertaining. Furthermore, there is a driveway to the front providing ample off street parking leading to a single garage.  Freehold EPC: B Council Tax: G

Reference: GWS250664

Request a viewing for this property

Simply fill out the form below or alternatively call us on 020 7839 0888

* Mandatory fields