Development Plot
£500,000
Thorntonhall, Glasgow, South Lanarkshire

Description


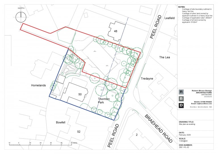
Property Description – Residential Plot for Sale, Peel Road, Thorntonhall Set within one of Scotland’s most prestigious village addresses, this exceptional residential plot offers a rare opportunity to create a bespoke contemporary home in the heart of Thorntonhall. The plot extends to approximately 2,650 m² (as confirmed on the site plans 266.1-PL-02-A-(A3) and is positioned within the generous grounds of Thornton Park, benefiting from a peaceful, leafy setting surrounded by mature trees and established homes. About Thorntonhall Thorntonhall is an exclusive and highly sought-after village located on the outskirts of Glasgow. Known for its privacy, tree-lined avenues and luxurious detached properties, the area is a favourite among buyers seeking tranquillity while staying within easy reach of the city. The village offers excellent transport connections, including Thorntonhall Train Station (direct services to Glasgow and the south), proximity to the M77 and A726, and convenient access to high-end amenities in nearby Clarkston, Newton Mearns and East Kilbride. Thorntonhall is also well-positioned for top-rated schooling, upscale dining, and beautiful rural walks. The Plot The plot is defined by the red boundary line on the submitted architectural drawings (see Site Plan as Existing and Site Plan as Proposed) 266.1-PL-03-A-(A3) The land is occupied by a clay tennis court, the proposal shows removed and levelled to accommodate the new dwelling. A new private access from Peel Road is incorporated within the approved layout, not in place currently including: • A gravel driveway and parking area • Visibility splays of 2.0 × 43 m to both sides, as indicated on the detailed drawings (Detailed Site Plan as Proposed, page showing visibility splays and access layout 266.1-PL-04-A-(A1) • Space for refuse storage, soft and hard landscaping, and garden ground Planning Permission The plot is being sold with full planning permission for: • A detached architect-designed home (shown as Item 1 on the proposed plans) • A separate garage / studio building (Item 2) • Associated driveway, parking and landscaping works The approved drawings, prepared by Robert Bruce Design, include detailed site planning, elevations, and sections (files B266.1-PL-03-A and B266.1-PL-04-A). These confirm the orientation, design footprint, and relationship to neighbouring boundaries and properties. Key Features • Rare development plot in exclusive Thorntonhall • Approx. 2,650 m² • Sold with planning permission for a contemporary detached residence • Private driveway access from Peel Road with compliant visibility splays • Mature surroundings with excellent privacy • Excellent commuter links and prestigious village setting Freehold

Reference: GWS250649

Request a viewing for this property

Simply fill out the form below or alternatively call us on 020 7839 0888

* Mandatory fields