4 Bedroom Detached House
£625,000
Newton Mearns, Glasgow, East Renfrewshire

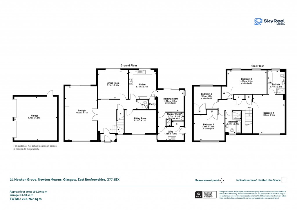
Floorplans For Newton Mearns, Glasgow, East Renfrewshire
EPC Graph for Newton Mearns, Glasgow, East Renfrewshire}

Description


Substantial GARDEN Set within one of Newton Mearns’ most prestigious and peaceful residential addresses, this impressive detached family home occupies a wonderful expansive plot with an exceptionally private and landscaped rear garden. The property combines generous internal accommodation with superb outdoor space. The accommodation is arranged over two levels and offers exceptional flexibility. The ground floor is entered via a welcoming reception hallway with useful storage and a cloakroom/WC. A bright and spacious lounge, flooded with natural light from dual aspects, opens directly to the garden, providing a perfect space for relaxation and gatherings. The formal dining room is ideal for family meals or entertaining guests. The modern fitted kitchen, which features ample wall and base units, quality appliances, and a handy adjoining pantry. Further ground floor accommodation includes a comfortable sitting room, a charming morning room overlooking the rear garden, a shower room, and a practical utility room with access to the garden - ideal for modern family living. On the first floor, the property offers four generously proportioned bedrooms, all with built-in wardrobes. The principal bedroom benefits from a four-piece en suite bathroom, featuring both a separate bath and shower enclosure. The remaining bedrooms are served by a well-appointed family bathroom. Bedroom four was originally formed from two separate rooms — the property was built as a five-bedroom house and could easily be reinstated to its original layout by re-erecting a stud wall and reopening the former entrance (currently plasterboarded over in the cupboard at the top of the stairs). The layout allows for excellent flexibility, with scope to create a fifth bedroom, home office, or guest accommodation if desired. Externally, the home sits within a particularly large and private plot, offering an exceptional outdoor environment. The extensive rear garden is beautifully maintained and offers a wonderful sense of privacy - perfect for summer entertaining, children’s play, or quiet relaxation. To the front, there is a substantial driveway providing off-street parking for several vehicles and access to a large detached double garage. Newton Grove is one of Newton Mearns’ most admired and established residential pockets, known for its tranquil surroundings and proximity to a wide range of local amenities. The area offers excellent shopping and dining options, including The Avenue Shopping Centre, Waitrose, and a variety of independent cafés and restaurants. There are outstanding local parks and leisure facilities nearby, including Rouken Glen Park, Parklands Country Club, and several golf clubs. For families, the property lies within the catchment for some of East Renfrewshire’s highest-performing schools, including Mearns Castle High School and St Ninian’s High School, as well as excellent local primary schools. There are also a number of well-regarded independent schools within easy reach. Commuter links are superb, with convenient access to the M77 motorway, providing swift routes to Glasgow city centre, Ayrshire, and beyond. Patterton and Whitecraigs Train Stations are only a short drive away, offering regular rail services to Glasgow Central Station. EPC C Council tax H Freehold

Reference: GWS250607

Request a viewing for this property

Simply fill out the form below or alternatively call us on 020 7839 0888

* Mandatory fields