3 Bedroom Detached House
£275,000
Eaglesham, Glasgow, East Renfrewshire

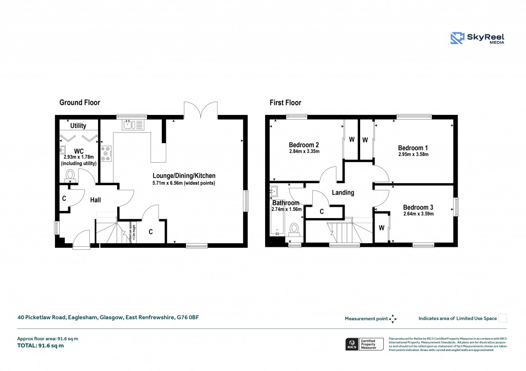
Floorplans For Eaglesham, Glasgow, East Renfrewshire
EPC Graph for Eaglesham, Glasgow, East Renfrewshire}

Description


**UNEXPECTEDLY BACK TO MARKET** A beautifully presented and spacious three-bedroom detached home, situated within the highly sought-after Eaglesham development by McTaggart & Mickel. Picketlaw Road enjoys a prime position in the charming semi-rural village of Eaglesham, renowned for its community feel and access to East Renfrewshire’s highly regarded schooling. Arranged over two levels, the property offers well-proportioned living space throughout: Ground Floor: A welcoming reception hallway with storage, guest WC, and built-in utility cupboard. Bright and spacious sitting/dining room with dual-aspect windows, offering direct access to the rear garden and flowing seamlessly into the kitchen. The modern open-plan kitchen is fitted with a range of wall and base units, complemented by quality worktops. First Floor: Upper landing giving access to all bedrooms. The principal bedroom benefits from fitted wardrobes, while bedrooms two and three are both doubles with built-in storage. A stylish family bathroom completes the accommodation. The property is enhanced by gas central heating and double glazing. A driveway lies to the side, with additional parking available to the front. One of the home’s outstanding features is the landscaped gardens, designed for privacy and enjoyment. The rear garden offers a large lawn and an attractive terrace, perfect for outdoor entertaining. The locally admired conservation village of Eaglesham is a fine example of late 18th-century planning and architecture, and the village was designated Scotland’s first outstanding conservation area in 1960. The village provides a range of local shops, up-market hotels, bars, restaurants, and the popular village primary school, as well as being within the catchment for nationally recognised first-class schooling. Some of Scotland’s highest attaining and most sought-after finest independent schools are all within this catchment area. The surrounding countryside offers quiet country lanes, fishing and a number of highly regarded golf courses including the adjacent Bonnyton Golf Club. There are regular bus services provided to the city centre and excellent motorway networks providing quick access to Glasgow and Ayrshire. Busby station and Clarkston station are the local train stations. Both Glasgow and Prestwick Airports are also within easy reach. EPC: B Council Tax: F Tenure: Freehold

Reference: GWS250565

Request a viewing for this property

Simply fill out the form below or alternatively call us on 020 7839 0888

* Mandatory fields