3 Bedroom Semi Detached House
£295,000
Thornliebank, Glasgow, East Renfrewshire

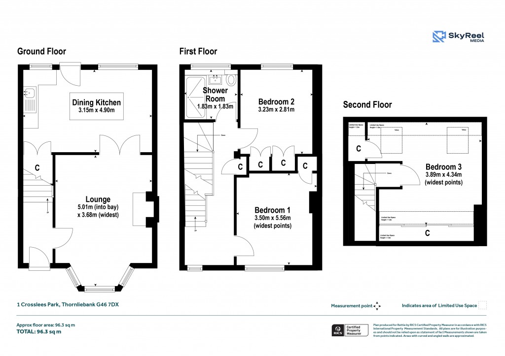
Floorplans For Thornliebank, Glasgow, East Renfrewshire
EPC Graph for Thornliebank, Glasgow, East Renfrewshire}

Description


A beautifully presented three-bedroom semi-detached villa set within the ever-popular Crosslees Park, Thornliebank. Ideally located close to local amenities in both Thornliebank and Giffnock, the property also falls within the sought-after East Renfrewshire school catchment area, making it an excellent choice for families. The home has been thoughtfully upgraded by the current owners and offers flexible accommodation arranged over three levels. On the ground floor, the welcoming reception hallway leads to a bright lounge with French doors opening into a contemporary open-plan kitchen and dining area. This fantastic space has been reconfigured into one room and features a large breakfasting island, excellent storage, and direct access to the rear garden. On the first floor, there are two well-proportioned double bedrooms, both offering space for fitted or free-standing storage, along with a stylish family bathroom. The attic floor is home to the principal bedroom, which benefits from eaves storage, space for a desk, and Velux windows enjoying fabulous views across Glasgow. Externally, the property is further enhanced by a driveway leading to a single garage, as well as private front and rear gardens. The rear garden includes a patio area, ideal for entertaining and outdoor dining. Additional features include gas central heating and double glazing, ensuring comfort throughout. Crosslees Park offers excellent access to outstanding schools in East Renfrewshire and nearby local amenities. The property is perfectly situated for commuters, with train stations close by and convenient road links to the M77 motorway and beyond. EPC D Council Tax D Freehold

Reference: GWS250548

Request a viewing for this property

Simply fill out the form below or alternatively call us on 020 7839 0888

* Mandatory fields