4 Bedroom Semi Detached House
£320,000
Thornliebank, Glasgow, East Renfrewshire

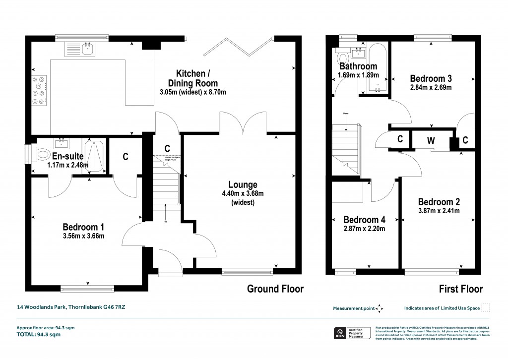
Floorplans For Thornliebank, Glasgow, East Renfrewshire
EPC Graph for Thornliebank, Glasgow, East Renfrewshire}

Description


Set within a generous corner plot, this beautifully presented end-terraced villa has been thoughtfully upgraded and reconfigured by the current owners to create a truly stylish and versatile family home. Combining modern design with flexible living spaces, the property offers an exceptional standard of accommodation while enjoying a highly convenient location close to local amenities. On entering, you are welcomed by a bright and inviting hallway with a staircase rising to the upper floor. To the front, the lounge provides an elegant yet comfortable space, complete with a feature media wall. French doors flow seamlessly into the heart of the home — a stunning open-plan dining family kitchen stretching across the full width of the property. Designed for both everyday living and entertaining, the kitchen is fitted with an excellent range of wall-mounted and floor-standing units, complemented by sleek worktops and a breakfast bar. The adjoining dining area is bathed in natural light, with bi-fold doors opening directly onto the decked terrace and landscaped rear garden, creating the perfect connection between indoor and outdoor living. Also on the ground floor, the principal bedroom offers a tranquil retreat with fitted wardrobes and a contemporary en-suite shower room. Upstairs, a spacious landing leads to three further double bedrooms, each well-proportioned and beautifully presented. A modern family bathroom completes the first floor, designed with both style and practicality in mind. The garden is a particular highlight of this home. Occupying a generous corner plot, it has been landscaped to provide distinct areas for relaxation and play, including a decked terrace, separate patio, expansive lawn, and well-stocked borders. To the front, a private driveway offers ample off-street parking, while additional residents’ and visitors’ spaces are available within the development. Further benefits include gas central heating and double glazing throughout, ensuring year-round comfort and energy efficiency. This superb villa is a perfect balance of modern style and family practicality, offering beautifully designed interiors, generous outdoor space, and a highly sought-after setting. The property sits within the catchment area for some of Scotland’s highest attaining primary and secondary schools. The area also has a host of local amenities including banks, healthcare centres, libraries, supermarkets and is close to The Avenue and Silverburn shopping centres. Local sports and recreational facilities include the adjacent David Lloyd Club and Rouken Glen Park, Parklands Country Club, Cathcart, Williamwood and Whitecraigs Golf Clubs and several of private bowling, tennis and rugby clubs along with East Renfrewshire Council's own excellent sports and leisure facilities at Eastwood Toll. Freehold EPC: C Council Tax: E

Reference: GWS250486

Request a viewing for this property

Simply fill out the form below or alternatively call us on 020 7839 0888

* Mandatory fields