6 Bedroom Detached House
£535,000
Bishopton, Renfrewshire

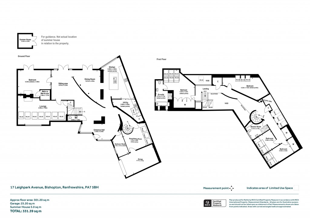
Floorplans For Bishopton, Renfrewshire
EPC Graph for Bishopton, Renfrewshire}

Description


An impressive 6-Bedroom Family Home in a desirable village setting. Rettie are delighted to bring to the market a truly unique and vibrant residence at 17 Laighpark Avenue , Bishopton – a stunningly presented six-bedroom, three-bathroom home offering style, substance, and character in equal measure. Nestled in the sought-after village of Bishopton, this expansive home boasts approximately 331.39 sq m of beautifully designed living space, including a garage and summer house. From the moment you enter the welcoming entrance hall, the home’s individuality is clear. The property unfolds into a series of well-considered and versatile spaces, blending bold, contemporary design with family-friendly functionality. The ground floor features a spacious lounge, complete with Velux windows. There is an adjacent bedroom with a spacious walk in wardrobe — ideal for guests or multi-generational living. A central sitting area, dining room, and showpiece kitchen with island unit provide the perfect backdrop for entertaining, while a study/sitting room, with an internal door through to the garage, an additional bedroom/study, utility area, and WC complete this level. Upstairs, you’ll find four further bedrooms, each with distinctive charm and generous proportions. The principal suite includes a luxurious en-suite and ample wardrobe space, while other rooms enjoy views over the gardens and access to a beautifully appointed bathroom and shower room. Clever architectural detailing and void spaces add volume and natural light to the upper floor. Outside, a summer house, garage and private gardens enhance the lifestyle on offer, ideal for alfresco dining, or simply enjoying village life. An additional key feature of this fantastic property are the 24 solar panels on the roof. Their capacity is 10kW and with battery storage of 14kW , these make a significant difference to the current owners electricity costs. With its bold personality, generous layout, and prime location in Bishopton, this one-of-a-kind home is perfect for those seeking space, flair, and flexibility. Nestled in the rolling countryside of Renfrewshire, Bishopton is a well-connected and highly desirable village offering the perfect blend of rural charm and urban convenience. Situated just 15 miles west of Glasgow, the village enjoys excellent transport links, including its own railway station on the Glasgow–Gourock line, making it ideal for commuters and families alike. Bishopton is known for its friendly community atmosphere, good local schools, and proximity to a wealth of amenities, including nearby shopping centres, leisure facilities, and beautiful parks. The Clyde coastline, Loch Lomond, and the Trossachs National Park are all within easy reach, offering exceptional outdoor and recreational opportunities. Freehold EPC: B Council Tax: G

Reference: GWS250341

Request a viewing for this property

Simply fill out the form below or alternatively call us on 020 7839 0888

* Mandatory fields