4 Bedroom Detached House
£435,000
Newton Mearns, Glasgow, East Renfrewshire

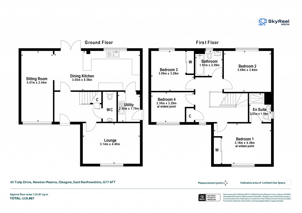
Floorplans For Newton Mearns, Glasgow, East Renfrewshire
EPC Graph for Newton Mearns, Glasgow, East Renfrewshire}

Description


This beautifully presented four-bedroom family home is located in a popular and highly sought-after area. Carefully maintained by the current owners, it offers flexible accommodation across two levels, ideal for modern family living. The ground floor features a welcoming entrance hall with a staircase to the first floor and a guest WC. A bright sitting room overlooks the front of the property, while the modern dining kitchen is fitted with a range of wall-mounted and floor-standing units, complemented by work surfaces and French doors opening onto the rear patio and garden. The family room, formerly the integral garage, provides additional living space, and a separate utility room offers convenient side access. On the first floor, a light-filled gallery landing leads to well-proportioned accommodation, including a storage cupboard. The principal bedroom benefits from fitted wardrobes and a stylish en-suite shower room, while the third bedroom also features fitted wardrobes. The second bedroom offers flexibility of use but does not include fitted storage. A fourth bedroom and a contemporary family bathroom complete the layout. Additional highlights include gas central heating, double glazing, and well-maintained, colourful gardens. The enclosed rear garden with a terrace is perfect for entertaining, and a driveway provides ample off-street parking. Newton Mearns is located approximately 9 miles from Glasgow City Centre. Commuter routes are served by the M77, M8 and Glasgow Southern Orbital motorways. Patterton Train Station is a short distance away. Newton Mearns is recognised for its standard of local amenities, providing an array of healthcare centres, banks and libraries and a broad range of supermarkets, boutique shops and restaurants, including The Avenue Shopping Centre and Greenlaw Retail Park which includes Waitrose, Tesco Metro, Aldi and a range of bars and restaurants and take aways. Daisy Place will allow access to some of Scotland's highest attaining primary and secondary schools, including Eastwood High and St. Ninian's High Schools. Freehold EPC B Council Tax F

Reference: GWS250330

Request a viewing for this property

Simply fill out the form below or alternatively call us on 020 7839 0888

* Mandatory fields