5 Bedroom Detached House
£685,000
Newton Mearns, Glasgow, East Renfrewshire

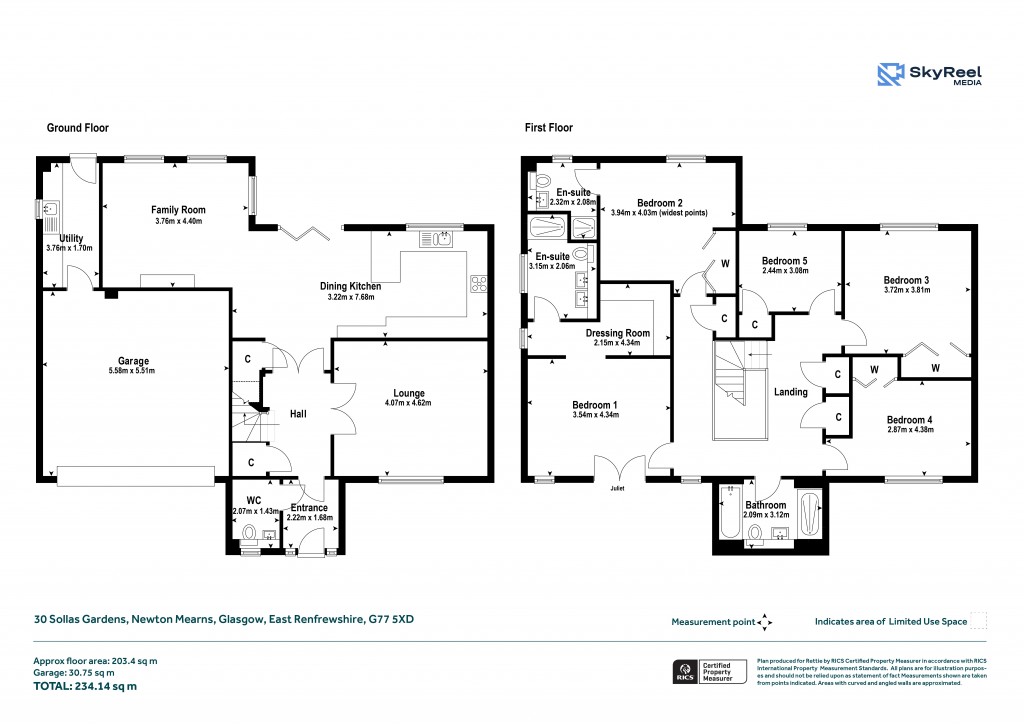
Floorplans For Newton Mearns, Glasgow, East Renfrewshire
EPC Graph for Newton Mearns, Glasgow, East Renfrewshire}

Description


**UNEXPECTEDLY BACK ON MARKET** This beautifully presented family home built by Cala Homes offers a perfect blend of contemporary style and family-friendly living within the highly sought-after Maidenhill community. Renowned for its quality and design, this home delivers both sophistication and practicality, with generous accommodation, an integral garage, and the reassurance of the remaining NHBC warranty. Set across two floors, the home welcomes you with a bright entrance vestibule and cloakroom/WC, leading into an elegant hallway. From here, French doors open into a formal lounge at the front of the property flooded with natural light. To the rear, the show-stopping dining kitchen and family room stretch the full width of the home. This open-plan space has been thoughtfully designed for modern living, featuring sleek fitted cabinetry, integrated appliances, and bi-fold doors that flow effortlessly to the private rear garden. A separate utility room with access to both the garden and garage provides everyday convenience. Upstairs, the galleried landing introduces five spacious bedrooms, each tastefully presented. Both the principal and guest bedrooms benefit from their own en-suite shower rooms, while the family bathroom is finished with a high-spec four-piece suite including a separate shower enclosure. The property is completed to an exceptional standard throughout, enhanced by modern décor, double glazing, gas central heating, and solar panels for improved efficiency. Externally, the gardens are designed for both relaxation and entertaining. The rear garden includes a generous lawn and a large paved patio accessible directly from the kitchen - perfect for al fresco dining. The front of the home features a broad driveway with space for multiple vehicles and access to the integral garage. The property sits within the catchment area for some of Scotland’s highest attaining primary and secondary schools which includes the newly built Maidenhill Primary School which sits adjacent to the house. The area also has a host of local amenities including banks, healthcare centres, libraries, supermarkets and is close to The Avenue shopping centre. Local sports and recreational facilities include Parklands Country Club, Cathcart, Williamwood and Whitecraigs Golf Clubs and several of private bowling, tennis and rugby clubs along with East Renfrewshire Council's own excellent sports and leisure facilities at Eastwood Toll. Freehold EPC B Council Tax G

Reference: GWS250187

Request a viewing for this property

Simply fill out the form below or alternatively call us on 020 7839 0888

* Mandatory fields