4 Bedroom Detached House
£595,000
Barrhead, Glasgow, East Renfrewshire

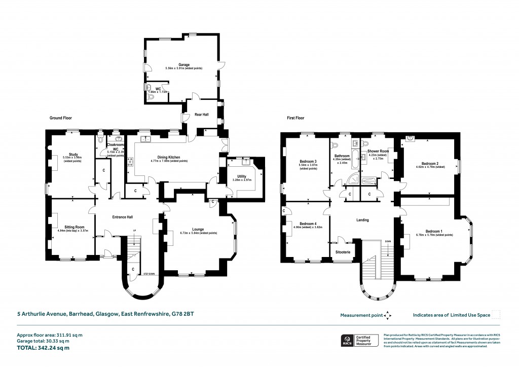
Floorplans For Barrhead, Glasgow, East Renfrewshire
EPC Graph for Barrhead, Glasgow, East Renfrewshire}

Description


A truly unique opportunity to own this rarely available sandstone home in the heart of Barrhead. This beautiful property, known as ‘Ferndean’, boasts spacious rooms, large gardens, and endless potential for a growing family or those seeking a charming, character-filled home. With its generous living spaces and prime location, this is a chance not to be missed.  This spacious four bedroom home is set over two levels and filled with charm and character. The house is C listed and of special architectural interest. It was part of the 2014 Hunterian Exhibition featuring Charles Rennie Mackintosh’s input into domestic designs many of which are evident in the property. Upon entering, you are welcomed by a charming entrance vestibule that leads into a stunning and grand reception hallway, complete with a feature fireplace and an inviting seating area. The formal lounge boasts a large bay window, offering picturesque views of the gardens, while the adjacent sitting room provides an additional space for relaxation. The home also features a versatile dining room/family room, perfect for entertaining or everyday living. The spacious dining kitchen is beautifully appointed with a range of wall-mounted and floor-standing units, a stylish breakfast island, and elegant French doors that open onto a private courtyard. The kitchen also gives access to a utility room. A separate back entrance hallway provides convenient access to a WC and the double garage. A grand staircase, adorned with ornate windows, ascends to the first-floor landing, where a charming sun porch offers breathtaking views of the expansive gardens. The bay-windowed principal bedroom is a true retreat, featuring stunning window details that flood the space with natural light. Three additional bedrooms, all generously proportioned doubles, provide ample space. The floor is completed by a well-appointed house family bathroom and a separate shower room. Further features of this exceptional home include gas central heating and partial double glazing. One of its most remarkable highlights is the extraordinary, expansive gardens that envelop the property, offering a sense of privacy and tranquility. The outdoor space boasts a generous terrace area, a vast manicured lawn, and beautifully stocked borders, creating a picturesque setting. A spacious driveway provides ample parking and leads to a double garage for added convenience. Additionally, a private courtyard, accessible from the kitchen, offers a secluded retreat for outdoor dining or relaxation. This is a rare and unique opportunity to acquire a truly grand residence of exceptional character and charm. Barrhead is fast becoming a highly popular residential area within East Renfrewshire, with excellent local schooling, including the well regarded St. Luke’s High School nearby. There is an array of facilities including the new retail park just off Glasgow Road and Silverburn shopping centre is easily reachable. Ideally located for travel to Glasgow and beyond via the M77 and M8 motorways only a short drive from the property, there is also a range of rail and bus transport available. The neighbouring countryside caters for a wide variety of outdoor sports and leisure pursuits including new cycle and walking routes at the nearby Dams to Darnley country park. Freehold EPC: D Council Tax: G

Reference: GWS250039

Request a viewing for this property

Simply fill out the form below or alternatively call us on 020 7839 0888

* Mandatory fields