2 Bedroom First Floor Flat
£225,000
Pollokshields

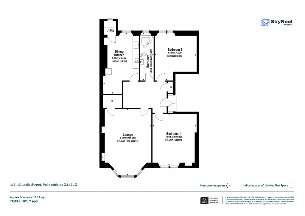
Floorplans For Pollokshields
EPC Graph for Pollokshields}

Description


**Closing date Tuesday 4th of November at 2.00pm** Located in the ever-popular Leslie Street, this charming first-floor tenement flat offers a wonderful blend of traditional character and modern comfort. The property features two spacious bedrooms, a bright bay-windowed lounge, and a stylish dining kitchen - a particular highlight of the home - with a range of wall-mounted and floor-standing units and a free-standing island, ideal for cooking and entertaining. The dining area creates a welcoming social space, perfect for family meals or gatherings with friends. A separate utility area adds to the convenience of this wonderful home. A well-presented bathroom includes a beautiful stained-glass feature, adding a touch of period charm. Throughout the apartment there is good storage and large windows that flood the rooms with natural light, enhancing the sense of space and highlighting the tasteful décor. The property benefits from a communal close and access to well-maintained residents’ gardens, providing a lovely outdoor retreat. On-street parking is available to the front. Ideally situated close to shops, cafes, and excellent transport links, this flat offers convenient access to Glasgow City Centre, making it perfect for professionals, couples, or small families seeking both style and location.

Reference: GWS240650

Request a viewing for this property

Simply fill out the form below or alternatively call us on 020 7839 0888

* Mandatory fields