3 Bedroom Duplex House
£345,000
Park, Glasgow

Floorplans For Park, Glasgow
EPC Graph for Park, Glasgow}

Description


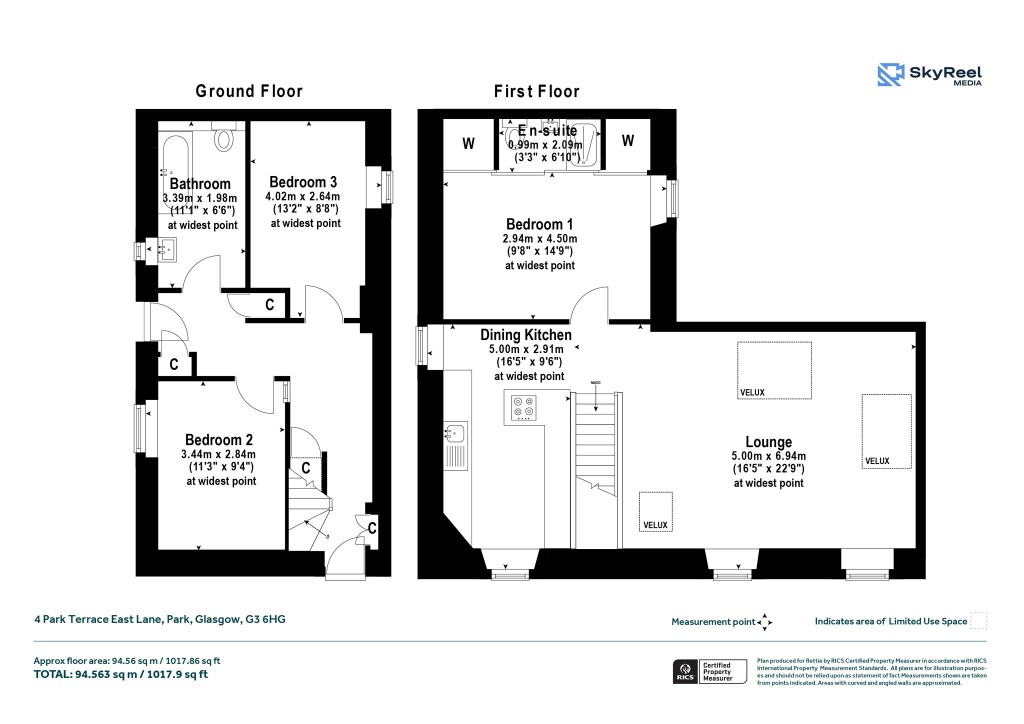
CLOSING DATE THURSDAY 29 TH JANUARY AT 2 PM Tucked away on a quiet cobbled lane just off Park Street South, this traditional three bedroom main door mews house presents a rare opportunity for discerning buyers that desire a direct access home in one of the city’s most exclusive neighbourhoods. The home benefits from a private garden and relishes a peaceful setting just a stone’s throw from the open green space of Kelvingrove Park. Arranged over two levels and accessed via its own private main door, the accommodation offers a well proportioned contemporary layout with a private walled garden area which has been laid to artificial grass. The ground floor is comprised of a welcoming entrance hallway, two bedrooms and a three piece family bathroom. An alluring spotlit modern staircase with a glass balustrade ascends to the upper level, where visitors are met with a stunning open plan kitchen and living area. Vaulted ceilings partnered with an array of skylights and windows create a fabulous, generously proportioned living space, perfectly suited to an evening’s relaxation or entertaining. The principal bedroom lies on the upper level and provides “wall to wall” wardrobe space and cleverly conceals a discreet three piece en-suite shower room. Park Terrace East Lane is perched just off Park Circus and is a brief stroll through the iconic Kelvingrove Park from the University of Glasgow and the beating heart of the West End. A range of convenience shopping on Woodlands Road is immediately accessible, while regular public transport provides straightforward access to the wider city. The City Centre and Finnieston are both readily accessible, and families will value the proximity to several of Glasgow’s leading independent schools. Convenient road links connect quickly to the M8, while the River Kelvin walkway and the park provide a charming escape close to your doorstep. This is a unique chance to acquire a distinctive main door home within Glasgow’s coveted West End, presenting calmness, comfort and style in a truly coveted location. Accommodation • Private main entrance from cobbled lane. • Stylish entrance hallway with stairway to upper level, understairs storage and two cupboards off, and door to private garden area. • Bedroom two is carpeted with window to the side. • Bedroom three is also of double proportions with window to the side. • Three piece family bathroom with large vanity mirror and slate grey tiled finish. • The stairway to the upper level opens into a splendid lounge and kitchen on the upper level. • The open plan kitchen is finished with white Krion worktops, matching sleek white cabinetry that compliments an aqua tiled splashback, with integrated appliances and space for dining. • The living portion of this space is beautifully bright, framed by the vaulted ceiling and skylights, and offers excellent space for day to day practicality. • Principal (main) bedroom with integrated wardrobes, window to the side, and access to three piece shower room. • Three piece shower room with vanity mirror and extractor fan. • Private walled garden with artificial grass and lane access via gate. • Availability of on street residents parking. The property was re-roofed in 2020 and has the balance of a ten year gaurantee.

Reference: GWE251097

Request a viewing for this property

Simply fill out the form below or alternatively call us on 020 7839 0888

* Mandatory fields