2 Bedroom First Floor Flat
£315,000
Dowanhill, Glasgow

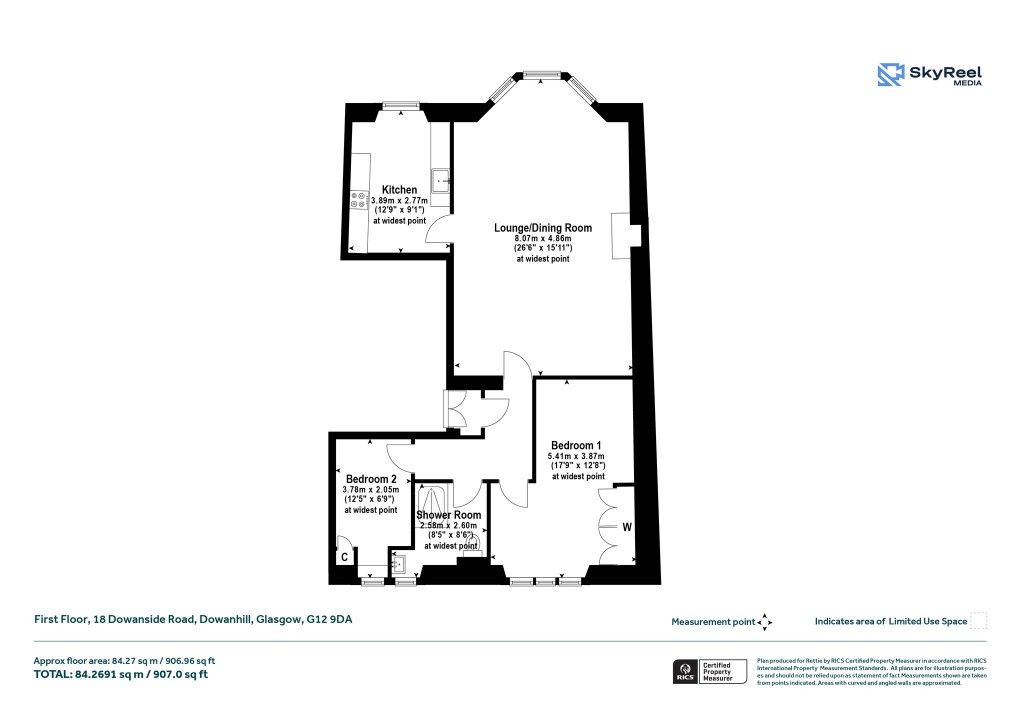
Floorplans For Dowanhill, Glasgow
EPC Graph for Dowanhill, Glasgow}

Description


A fabulous two bedroom apartment occupying a preferred first floor position within a traditional townhouse conversion, set on Dowanside Road’s elegant sweeping lower crescent, just moments from Byres Road and the University of Glasgow. The accommodation presents a superb opportunity to acquire a West End home of real character in a prominent setting. Notable highlights include impressive ceiling height, beautifully retained period cornicing, and a grand bay windowed lounge that enjoys a bright southerly aspect with an open outlook towards Byres Road and the nearby Dowanhill Tennis Club. The principal living space is both elegant and adaptable, comfortably accommodating a variety of configurations for relaxed day to day living, while also lending itself effortlessly to hosting and entertaining. The fitted kitchen is particularly fetching, with understated soft grey in-frame cabinetry finished with classic cup pulls, all complemented by butcher block worktops and warm timber flooring to create a lovely dual tone scheme. The principal bedroom enjoys calm views from a broad three section window, and excellent integrated wardrobe storage and access to an invaluable “attic” storage space above the second bedroom. The second bedroom offers ideal flexibility as a guest room, home office or dedicated gym/hobby space. The shower room is instantaneously impressive, finished in crisp white tiling with a contemporary suite accented by traditional fittings, and a generous shower enclosure. Dowanhill is renowned as one of the most coveted districts of Glasgow, adorned with an array of gorgeous architectural marvels, the area relishes its serene setting and astounds with its surprising convenience. The University of Glasgow is merely a “stone’s throw” from the foot of Dowanside Road, with leading independent schools including The Glasgow Academy and Kelvinside Academy a short commutable distance. Access to the Botanic Gardens and Kelvingrove Park is straightforward, with the tremendous excitement of Byres Road and Ashton Lane just around the corner. As such, this outstanding first floor home will prove a compelling proposition for professionals and those associated with the University, as well as discerning buyers seeking peaceful living at the very heart of Glasgow’s West End. Accommodation • Communal entrance hall with stairway to each level. • Storm door vestibule. • Inner hallway with pendant lighting and access to storage above entrance vestibule and larger storage void above the second bedroom. • Substantial front lounge with broad south facing three section bay window, granting charming views up Dowanside Road and over the nearby Dowanhill Tennis Club. The room is detailed with exceptionally elaborate and well preserved ceiling cornice and centre rose, with a focal point gas fireplace. • Fitted kitchen with large window to the front, grey cabinetry complementing butcher block worktops, inset ceramic sink and tiled splashback, integrated appliances, mini clothes drying “pulley” and detailed cornice. • Principal (main) bedroom is well proportioned with large three section window to the rear, integrated wardrobes and access hatch to storage area above bedroom two. • Bedroom two with single window to the rear. • Three piece shower room with marble effect tiling and traditional fittings including overhead “rainfall” shower. • Double glazing. • Gas central heating. • Availability of on street resident’s parking. EPC: D Council Tax: E Tenure: Freehold

Reference: GWE251074

Request a viewing for this property

Simply fill out the form below or alternatively call us on 020 7839 0888

* Mandatory fields