2 Bedroom Upper Floor with Lift Flat
£187,000
Partick, Glasgow

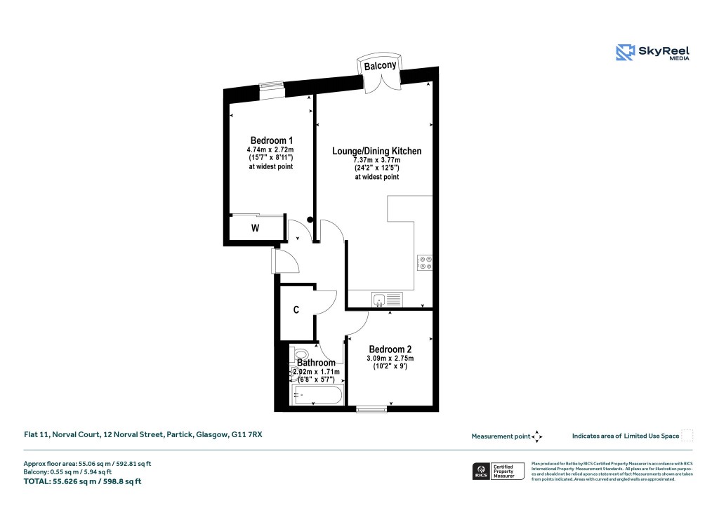
Floorplans For Partick, Glasgow
EPC Graph for Partick, Glasgow}

Description


A bright modern two bedroom apartment occupies the second floor within the popular Norval Court development in the heart of Partick. This beautifully presented property also showcases the building’s impressive central atrium foyer, and enjoys a calm setting with all the attractions of the West End close at hand. The property has been carefully refurbished, with a well considered open plan layout, and excellent natural light from a generous double window with Juliet balcony in the main living area. The lounge is airy and inviting, with a breakfast bar creating a sociable open plan living, dining and kitchen space. The fitted kitchen features sleek white gloss units, contrasting grey worktops, a metallic splashback, and a breakfast bar that is ideal for relaxed meals or informal entertaining. There are two well proportioned double bedrooms, each with an attractive outlook. The main bedroom features a fitted mirrored wardrobe, while the second bedroom offers flexible use as a guest room, study, or dressing room. The modern bathroom has been refitted in a clean tiled finish and includes a white three piece suite with an electric shower over the bath. Further features include modern electric heating, new flooring throughout, and double glazing. The building provides secure entry, lift access to all levels, and Norval Court’s distinctive internal atrium, a bright communal space that adds both light and character to the development. This appealing home will suit a wide range of buyers, from first time purchasers to investors and those seeking a comfortable property that is easy to maintain and ready to move into. Ideally positioned for the many amenities of Partick and the wider West End, Norval Street is just moments from Dumbarton Road, Crow Road, and Byres Road, with excellent transport links nearby including Partick Station, the Clydeside Expressway, and the Clyde Tunnel. Accommodation • Secure door entry system. • Well maintained communal atrium and stairwell. • Elevator to all levels. • Reception hall with two useful storage cupboards. • Lounge and dining room with large double window, Juliet balcony, breakfast bar, and bright outlook. • Contemporary open plan kitchen with oven, hob, extractor, freestanding washing machine and fridge. • Two double bedrooms, main bedroom with fitted mirrored wardrobe, second bedroom ideal as guest room or study. • Modern bathroom with white suite and electric shower over bath. • Electric heating. • On street parking. EPC: C Council Tax: D Tenure : Freehold

Reference: GWE251069

Request a viewing for this property

Simply fill out the form below or alternatively call us on 020 7839 0888

* Mandatory fields