3 Bedroom Terraced House
£339,000
Scotstoun, Glasgow

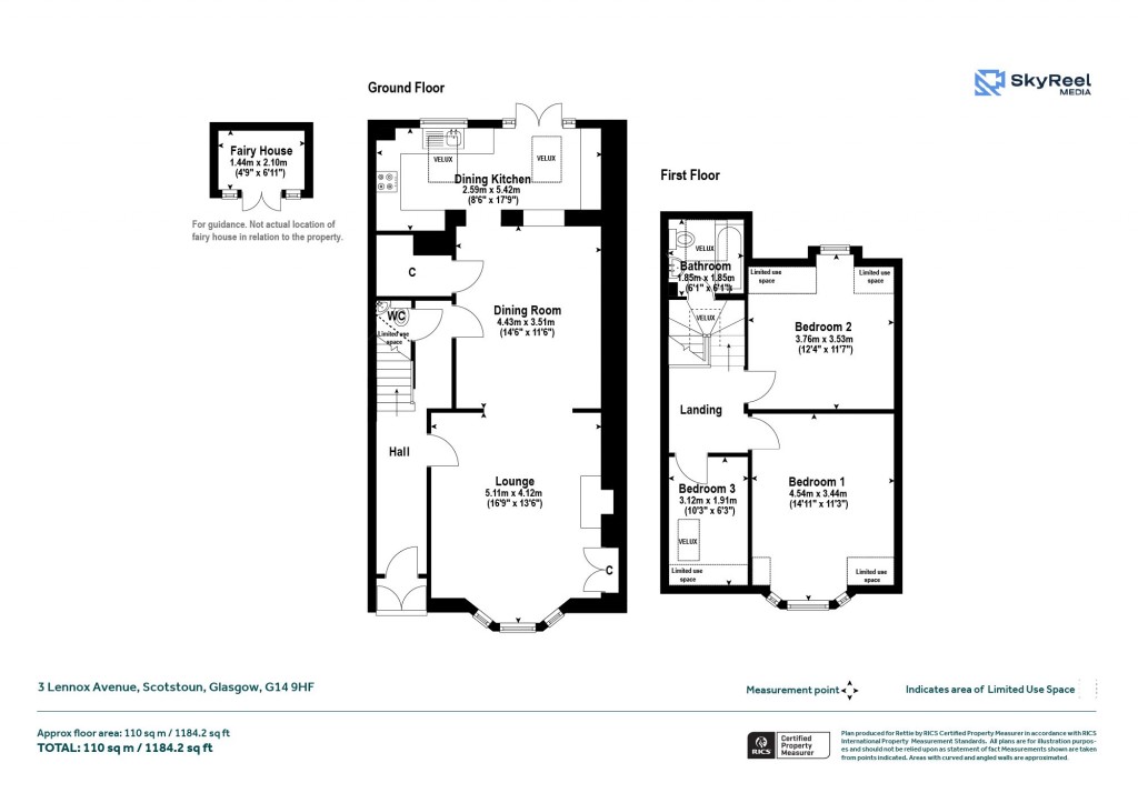
Floorplans For Scotstoun, Glasgow
EPC Graph for Scotstoun, Glasgow}

Description


CLOSING DATE FRIDAY 9TH JANUARY AT 11 AM Situated in the peaceful and highly popular conservation area of Scotsoun, within easy reach of all amenities in the West End of Glasgow and just around the corner from the highly regarded Scotstoun Primary School (voted best primary school in Glasgow this year), this extremely attractive, carefully modernised mid-terrace villa offers bright, beautifully appointed family accommodation and benefits from enclosed, tastefully landscaped family gardens to rear complete with timber shed – which current owner and neighbours refer to as ‘The Fairy House’. Lennox Avenue is a picturesque, leafy address filled with attractive, traditional terraced villas. The local area is particularly popular with growing families in search of additional bedroom space and a private garden - whilst not leaving their favourite amenities in the West End too far behind them. As a location, Scotstoun offers tremendous convenience to professionals and families. The local area has everything from a large leisure centre with swimming pool and sports grounds to supermarkets, shops, cafes and public transport links. Victoria Park is nearby too and there you will find tremendous open green spaces with pond, tennis courts and children’s playground too. Scotstoun is particularly handy for anyone who requires easy access to major road networks including the Clydeside Expressway and Clyde Tunnel which lead directly to the M8 and M74 motorways. In recent years healthcare professionals have been attracted to find a home in Scotstoun, being particularly convenient for accessing the QEUH by bicycle or on foot. The property for sale is an attractive sandstone fronted, mid-terrace villa which has been carefully upgraded and maintained by the current owner to a comfortable specification. As such, the property is presented in extremely good order throughout and the accommodation is ready to be moved into and enjoyed immediately. To the front of the property there is an enclosed garden, with a gated pathway that leads to the property’s outer storm doors. To the rear you will find a lovely, enclosed family garden which faces South-West and backs towards a section of neatly maintained resident’s garden – which can be used by the residents of Lennox Avenue. As you will see from the attached photographs and HD video, the garden has been laid to low maintenance materials resulting in an attractive, enclosed family garden which offers a safe space for children to play in or intimate family bbqs etc. Internally it is plain to see that the current owners have gone to great lengths to create a bright & comfortable family home in which traditional features have been sympathetically maintained and combined with stylish modern décor. In brief the accommodation extends to; storm porch, reception hall with staircase leading off to upper level, bay window living room which is open plan to a spacious dining room, well-appointed extended kitchen that has been thoughtfully upgraded and includes integrated appliances, abundant worktop space and French doors that open out to the rear garden. The stairway leads firstly to a family bathroom at half landing level which has been tastefully upgraded tiled and has white three-piece suite with shower over bath, before leading on to the upper level where there are two substantial king-sized bedrooms and a third single-sized room.

Reference: GWE251066

Request a viewing for this property

Simply fill out the form below or alternatively call us on 020 7839 0888

* Mandatory fields