1 Bedroom Upper Floor Flat
£199,000
Shawlands, Glasgow

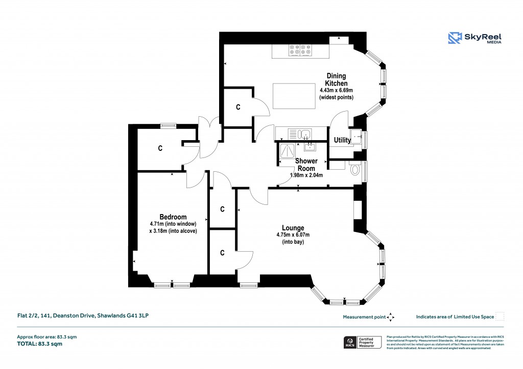
Floorplans For Shawlands, Glasgow
EPC Graph for Shawlands, Glasgow}

Description


***CLOSING DATE FRIDAY 5TH DECEMBER AT 12PM*** Deanston Drive is a truly superb one bedroomed, second floor flat. This flat truly has it all; large corner lounge with bay window, a dining sized kitchen (with a bay window), utility space, an abundance of storage cupboards. Early viewing for this wonderful flat is highly recommended. This apartment has enjoyed extensive upgrading and hence is presented to the market in true walk-in style condition, tastefully decorated in modern neutral tones throughout. This red sandstone building is entered via secure door entry system into a well-kept communal close (complete with original tiling) and stairwell. The accommodation of the flat itself comprises: large welcoming reception hallway with excellent storage off. The beautifully presented lounge with corner bay window formation (complete with snug seating) provides exceptional views along Deanston Drive and Strathyre Street. The stunning dining sized kitchen features a range of wall and floor mounted units, a breakfasting bar, with ample space for dining table and chairs in the bay window: a great entertainment space. There is a large utility cupboard conveniently placed off kitchen. A generously sized double bedroom is set to the rear of the flat and completing the overall accommodation is a modern, tiled shower room with white three piece suite. The property benefits from double glazing, gas central heating and fresh and tasteful decoration throughout. It offers a seamless blend of period features. Shawlands is considered by many to be the "brunch capital of Glasgow. While the brunch spots are excellent and numerous, there are also a wide range of other amenities including restaurants, bars, parks and much more. This flat is perfectly situated to enjoy everything that Shawlands has to offer, including Queens Park at the end of the street as well as excellent transport links with Pollokshaws East and Crossmyloof a short walk away.

Reference: GWE251030

Request a viewing for this property

Simply fill out the form below or alternatively call us on 020 7839 0888

* Mandatory fields