3 Bedroom Duplex Flat
£125,000
Dowanhill, Glasgow

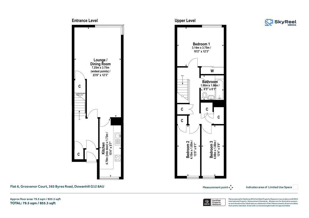
Floorplans For Dowanhill, Glasgow
EPC Graph for Dowanhill, Glasgow}

Description


Discreetly tucked away and lofted above the hustle and bustle of Byres Road, the West End’s main vein, is this surprisingly peaceful and enviably well placed three bedroom duplex apartment, complete with a private off street parking space located on the top floor of the muti-storey car park on Grosvenor Lane. This home is comfortably proportioned and set across two levels, the lower of which serves as a fantastic living area, comprised of a spacious lounge and dining room located beside a separate kitchen. The views from the front lounge are exceptional. The corner window is perfectly positioned opposite Vinicombe Street, allowing for unobstructed open views across, and also right down Byres Road to the south, with a sense of unoverlooked privacy that perfectly marries with this “people watcher’s” paradise. The second level houses three bedrooms and provides sufficient division from the living areas, with two peaceful rear rooms ideal for sleeping or study and the principal bedroom relishing the jaw-dropping front aspect; the arrangement lends itself to practical flexibility, while generous storage by way of three cupboards accessed from the upper hallway, in addition to integrated wardrobes and a three-piece family bathroom completing the accommodation. Grosvenor Court is exceptionally well located, being directly beside the main entrance to the Botanic Gardens and the Òran Mór. The University of Glasgow is a short walk along Byres Road, with Hillhead Subway and frequent bus links close at hand for swift access across the city. Day-to-day amenities are awe inspiring, with cafés, restaurants, independent shops and supermarkets all nearby. Local schooling is also very strong, with access to well-regarded local schools and several of Glasgow’s leading independent schools, including The Glasgow Academy, The High School of Glasgow and the Kelvinside Academy within commutable distance. An exciting combination of privacy, parking and position; Grosvenor court stands apart as a brilliant example of a property that balances serenity, ease of modern living, and delivers a setting every bit as impressive as its location. This is a leasehold property, and therefore purchasers will need to consider that the subject may not be mortgageable with all lenders. Accommodation • Entrance vestibule cloakroom. • Inviting hallway with storage off and stairway to the upper level. • Spacious front lounge/dining room with outstanding open aspect across Vinicombe Street and a view right down Byres road, from a double glazed corner window, also with understairs storage off. • Fitted kitchen with cabinetry, plenty of counter space, electric cooker and oven, freestanding fridge and freezer and “wall to wall” window to rear. • Upper hallway with three storage cupboards off. • Principal (main) bedroom has fitted wardrobes and broad window with exciting outlook to the front. • Bedroom two with window to rear and integrated wardrobes. • Bedroom three with window to the rear. • Private parking space on top floor of multi storey car park accessed from Grosvenor Lane. • Electric heating. • Double glazing. EPC: D Council Tax: E Tenure: Leasehold

Reference: GWE251009

Request a viewing for this property

Simply fill out the form below or alternatively call us on 020 7839 0888

* Mandatory fields